Asumisoikeusasunto, Metsäläntie 6b, Pohjois-Pasila, Pasila, 00240, Helsinki

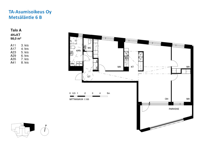
Neliö | 4h+kt | 98 m²

1 502,81 €/kk

Käyttövastike

73 783,06 €

Alustava asumisoikeusmaksu

Seitsemännen kerroksen neliö persoonallisella pohjaratkaisulla varustettu perheasunto tarjolla. Keittiössä vakiovarusteena keraaminen liesi, tilavaraukset astianpesukoneelle ja mikrouunille. Asunnossa laminaattilattiat, kylpyhuone- ja erillis-wc laatoitetut. Kylpyhuoneessa liitos- ja tilavaraukset pyykinpesukoneelle/pesutornille. Parveke on lasitettu. Autopaikkaa ei ole tällä hetkellä varattavissa, mutta sitä voi jäädä jonottamaan. Asunnon valokuvat ovat vastaavanlaisen asunnon valokuvia. Jättäisittekö hakemuksen meille?

Metsäläntie 6b on valmistunut vuonna 2021 ja kohteessa on kaksi asumisoikeuskerrostaloa, joissa on yhteensä 64 asuntoa. Asukkaiden käytössä ovat monipuoliset yhteistilat, kuten viihtyisät talosaunat A-talon ylimmässä kerroksessa, kerhohuone sekä pesula ja kuivaushuone B-talossa sekä runsaasti varastotilaa polkupyörille ja ulkoiluvälineille. Jokaiselle asunnolle on myös oma tilava irtainvarasto. Autoille on paikkoja korttelin yhteisessä pysäköintihallissa. Korttelin yhteispihalla on oleskelutilaa sekä leikkialue lapsille. Pihan suunnittelussa on kiinnitetty erityishuomiota valaistukseen ja viheralueisiin. Postipuiston kehittyvä asuinalue sijaitsee hyvien kulkuyhteyksien ja Helsingin Keskuspuiston kupeessa. Uudella, urbaanilla alueella otetaan erityisesti huomioon energia- ja ekotehokkuus sekä asumisen yhteisöllisyys. Alueelle oman leimansa luovat erilaiset asuntokorttelit ja yhtenäiset sisäpihat, puistovyöhyke sekä alueen asukkaiden yhteiskäytössä oleva yhteisötalo Postivarikko, jossa on mm. kuntosali, harrastetilaa sekä ohjattua liikuntaa. Keski-Pasilassa sijaitseva kaupunkikeskus Mall of Tripla tarjoaa suuren määrän erikoisliikkeitä, ravintoloita ja palveluja lähellä kotia. Asumisoikeustalojen kanssa samassa korttelissa toimii päivittäistavarakauppa. Postipuistosta on Pasilan asemalle matkaa noin pari kilometriä sekä Käpylän ja Ilmalan asemille noin kilometri. Pasilasta on loistavat liikenneyhteydet Helsingin ydinkeskustaan ja kaikkialle Suomeen. Postipuiston poikki kulkee myös busseja, ja alueella on alustava varaus myös raitiotielle. Keskuspuistossa on erinomaiset ulkoilu- ja virkistysmahdollisuudet ympäri vuoden. Pohjois-Pasilan asukasluku kasvaa yli 12 000 asukkaaseen 2030-luvulla. Asuntojen lisäksi alueelle rakentuu noin 2 000 uutta työpaikkaa. Alueelle rakennetaan tulevina vuosina myös kaksi päiväkotia ja koulu.

Yhteydenotot
Minna Pimenov +358409222681 minna.pimenov@ta.fi
Perustiedot
  • Osoite: Metsäläntie 6b A 35, 00240 Helsinki
  • Asuinalue: Pasila
  • Kaupunginosan tarkenne: Pohjois-Pasila
  • Postinumero: 00240
  • Postitoimipaikka: Helsinki
  • Valmistumisvuosi: 2021
  • Asumismuoto: Asumisoikeus
  • Huoneistotyyppi: 4h+kt
  • Huoneita: 4
  • Pinta-ala: 98 m²
  • Huoneistoala yhteensä: 98 m²
  • Kerros/kerroksia: 7/8
  • Hissi: Kyllä
  • Parveke: Kyllä, lasitettu
  • Tupakointi kielletty: Kyllä
  • Lemmikit sallittu: Kyllä
Sopimus ja maksut
  • Käyttövastike: 1 502,81 €/kk
  • Alustava asumisoikeusmaksu: 73 783,06 €
  • Vakuusmaksu: 250,00 €
  • Vesimaksu: 22,50 €/hlö/kk
Pysäköintipaikat
  • Halli: 90,00 €/kk
  • Moottoripyörä, Halli: 35,00 €/kk
Kohteen tiedot
  • Talotyyppi: Kerrostalo
  • Asuntojen määrä: 64
  • Hissi: Rappu 6b A, Rappu 6b B
  • Valmistumisvuosi: 2021
  • Energialuokka: A2018
  • Lämmitys: Maalämpö
  • Ilmanvaihto: Koneellinen tulo/poisto
  • Kiinteistöhuolto: Helsingin Kiinteistöpalvelu Oy
  • Autopaikat: 32 kpl

Muut vapaat ja vapautuvat asunnot

Huoneistonumero Huoneistotyyppi Kerros Tila
2h+kt 54,5 3/8 Vapautumassa
4h+kt 98,0 7/8 Vapautumassa

Tupakointi on kiellettyä kaikissa asunnoissamme ja talojen yhteisissä tiloissa kuten rappukäytävissä sekä sauna- ja varastotiloissa.

Vuodesta 2019 lähtien tehdyissä uusissa asumisoikeussopimuksissa ja vuodesta 2020 tehdyissä vuokrasopimuksissa asukas on sitoutunut olemaan tupakoimatta kiinteistön alueella mahdollista erikseen osoitettua tupakointipaikkaa lukuun ottamatta. Uudiskohteissa savuttomuusehto on otettu käyttöön jo aiemmin.

Osa kiinteistöistämme on kokonaan savuttomia. Savuttomuus tarkoittaa sitä, että tupakointi on kiellettyä kiinteistössä, sen asunnoissa, parvekkeilla, piha-alueilla ja yhteisissä tiloissa.

Jätä meille asuntohakemus

Täyttämällä hakemuksen voit hakea meiltä vuokra-asuntoa, jättää asumisoikeushakemuksen sekä vapaisiin ja vapautuviin asuntoihin että varattuihin asumisoikeuskohteisiin. Saat asuntotarjouksen heti kun voimme tarjota toiveitasi vastaavaa asuntoa. Mikäli sinulla on kysyttävää, otathan yhteyttä asunnon tai kohteen myyntineuvottelijaan.

Tutustu asuntoon ennen päätöstä

Voit tutustua asuntoon ensin ja päättää vasta sitten, haluatko tehdä kanssamme sopimuksen. Mikäli olet hyväksynyt asumisoikeusasunnon asuntotarjouksen, pyrimme järjestämään sinulle mahdollisuuden tutustua asuntoon jo tarjouskierroksen aikana. Järjestämme jonkin verran myös yleisiä näyttöjä vapaissa asunnoissamme. Uudiskohteissa ei valitettavasti voi järjestää vastaavanlaisesti näyttöjä kuin jo valmistuneissa kohteissa.