Nuolemontie 14, Keskusta, Kirkonseutu, 21420, Lieto

The area offers excellent outdoor and exercise opportunities. Illuminated fitness stairs are located right next to the house, and the Aurajoki River, which is considered a national landscape, with its fields, is only a short walk away. In addition, the nearby area offers a popular children’s traffic park and the relatively new city hall fitness park.

The center of Liedo has all the daily services you need. The Föli bus runs in front of the house, and the trip to Turku Market Square takes less than half an hour.

Fill out the apartment application at https://ta.fi/vuokrahakemus. Credit information will be checked.

Apartment selection

Type of apartment number
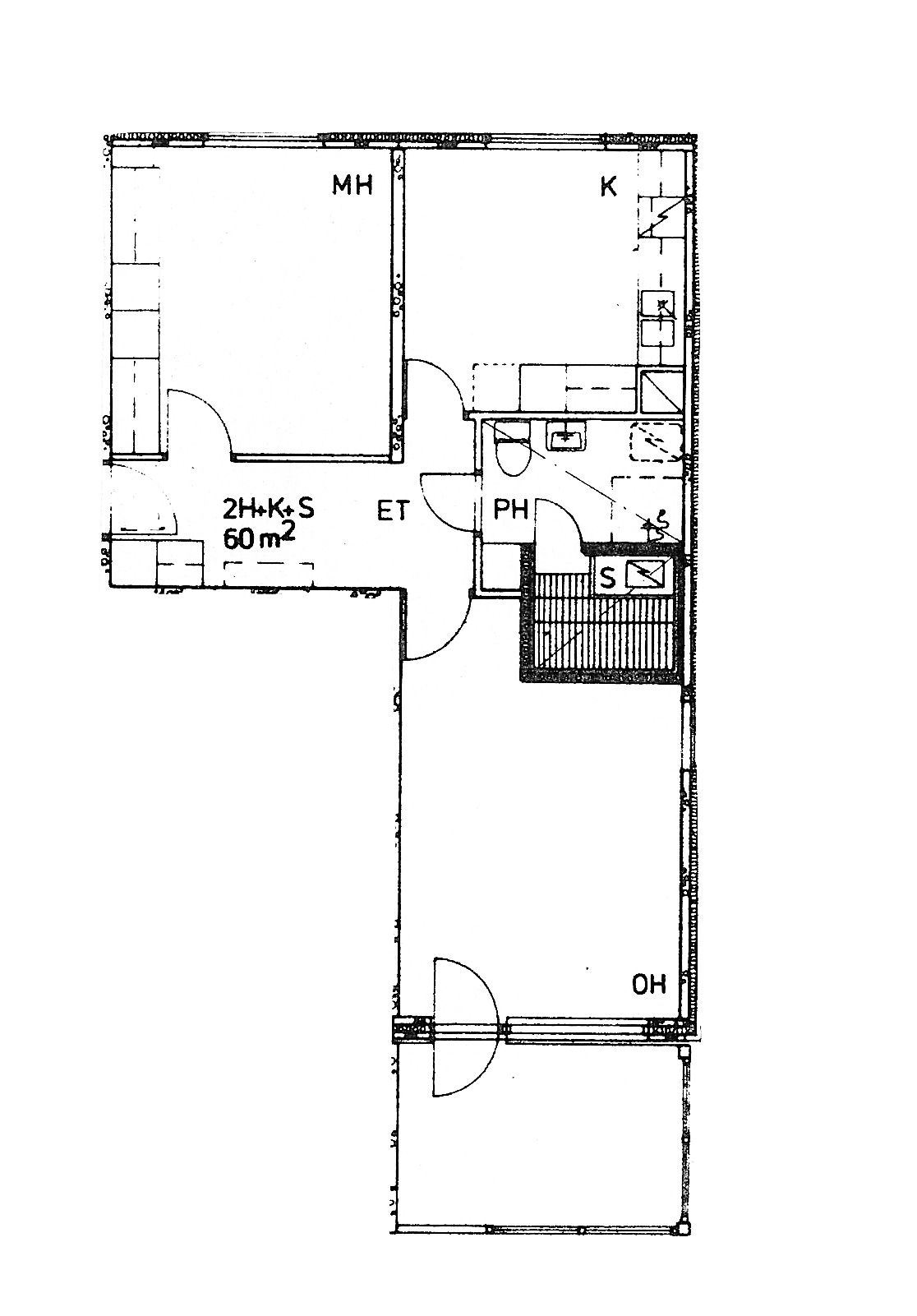
2h+k+s 60 — 60 1
Contacts
Sales Tuula Rajamäki +3584577343793 (vain puhelut) tuula.rajamaki@ta.fi
Basic property information
  • Address: Nuolemontie 14
  • Postal code: 21420
  • City/town: Lieto
  • District: Kirkonseutu
  • District: Keskusta
  • Apartments: 1
  • Year of completion: 1985
  • Building type: Block of flats
  • Form of heating: District heating
  • Form of ventilation: Ei määritelty
  • Parking spaces: 0 number
Contact information
Sales
Tuula Rajamäki +3584577343793 tuula.rajamaki@ta.fi
Property manager
Alina Tuominen +3584578209158 alina.tuominen@ta.fi
Property secretary
Sari Nykänen +358409225371 sari.nykanen@ta.fi

Apartments and floor plans

All apartments in the property, both available and reserved. You can also fill out an application for an apartment that is reserved. Reserved apartments will be offered to applicants as they become available.

Apartment number Type of apartment Floor Building type Floor plan
Talo C
C 23 2h+k+s 60,0 m² 2/3 Block of flats

Energy Performance Certificate

Get property’s energy performance certificates (in Finnish)

Smoking is prohibited in all our apartments and in common areas of the buildings, such as stairwells, saunas and storage rooms.

In new right-of-occupancy agreements made since 2019 and in rental agreements made since 2020, the tenant has committed to not smoking in the property area, except for a possible separately designated smoking area. In new properties, the smoking-free condition has already been introduced earlier.

Some of our properties are completely non-smoking. Non-smoking means that smoking is prohibited in the property, its apartments, balconies, courtyards and common areas.

Fill out the application on our website

By filling out an application you can apply for a rental apartment, submit an application for a right-of-occupancy for both vacant and vacated apartments and reserved right-of-occupancy properties. You will receive an apartment offer as soon as we can offer an apartment that meets your wishes. If you have any questions, please contact the sales representative of the apartment or property.

Check out the apartment before making a decision

You can view the apartment first and then decide whether you want to make a contract with us. If you have accepted an offer for a right-of-occupancy apartment, we will try to arrange for you to view the apartment during the offer round. We also arrange some general viewings in our vacant apartments. Unfortunately, it is not possible to arrange viewings in properties under construction in the same way as in properties that have already been completed.