Asumisoikeusasunto, Valajankatu 6, Rautpohja, 40600, Jyväskylä

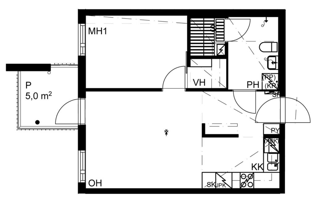
Kaksio | 2h+kk+s | 46 m²

550,43 €/kk

Käyttövastike

21 311,27 €

Alustava asumisoikeusmaksu

Toimivapohjainen koti rauhallisessa ympäristössä. Asunnossa on oma sauna, joka tuo arkeen ripauksen luksusta, sekä erillinen vaatehuone, joka helpottaa säilytystä ja auttaa pitämään kodin siistinä.

Asuntoon on lisä- ja muutostyönä asennettu parvekelasitus, joka pidentää parvekkeen käyttöaikaa keväästä syksyyn ja lisää asumismukavuutta ympäri vuoden. Selkeä pohjaratkaisu ja avarat oleskelutilat tekevät kodista viihtyisän niin yksinasuvalle kuin pariskunnallekin.

Hyvin hoidettu asumisoikeuskohde ja käytännölliset tilaratkaisut tarjoavat huolettoman vaihtoehdon omistusasumiselle. Onko tässä juuri sinun tuleva kotisi?

Valajankatu 6 on neljäkerroksinen 34 asunnon asumisoikeuskerrostalo Jyväskylän Rautpohjassa. Kohde sijaitsee keskeisellä paikalla Jyväskylää, keskussairaalan ja Kyllön terveyskeskuksen läheisyydessä. Keskustaan sekä Savelan palveluihin on noin kaksi kilometriä. Lähistöllä sijaitsee useita kouluja ja oppilaitoksia. Alueella on hyvät harrastusmahdollisuudet; jäähalli, Aalto Alvarin vesiliikuntakeskus ja monitoimihalli ovat kaikki kävelyetäisyydellä.

Kohteessa on pesutupa sekä kuivaushuone. Huoneistoissa laminaattilattiat ja pesuhuoneet laatoitettu. Kosteiden tilojen sähköinen lattialämmitys ja huoneistokohtainen LTO-kone huoneiston sähköstä. Autoille löytyy sekä piha- että katospaikkoja. Kohteessa on kiinteistölaajakaista, jonka perusnopeus 50 Mbit/s sisältyy käyttövastikkeeseen.

Yhteydenotot
Myynti Jaana Koivisto +3584577343804 (vain puhelut) jaana.koivisto@ta.fi
Perustiedot
  • Osoite: Valajankatu 6 A 14, 40600 Jyväskylä
  • Asuinalue: Rautpohja
  • Postinumero: 40600
  • Postitoimipaikka: Jyväskylä
  • Valmistumisvuosi: 2010
  • Asumismuoto: Asumisoikeus
  • Huoneistotyyppi: 2h+kk+s
  • Huoneita: 2
  • Pinta-ala: 46 m²
  • Huoneistoala yhteensä: 46 m²
  • Kerros/kerroksia: 2/4
  • Hissi: Kyllä
  • Oma sauna: Kyllä
  • Parveke: Kyllä, lasitettu
  • Tupakointi kielletty: Kyllä
  • Lemmikit sallittu: Kyllä
Sopimus ja maksut
  • Käyttövastike: 550,43 €/kk
  • Alustava asumisoikeusmaksu: 21 311,27 €
  • Vakuusmaksu: 1 100,86 €
  • Vesimaksu: 28,50 €/hlö/kk
Pysäköintipaikat
  • Inva, Piha, Tolppapaikka: 22,00 €/kk
  • Piha, Tolppapaikka: 22,00 €/kk
  • Katos, Tolppapaikka: 32,00 €/kk
  • Katos, Tolppapaikka, Sähköauton lataus: Latausratkaisun mukaan
Kohteen tiedot
  • Talotyyppi: Kerrostalo
  • Asuntojen määrä: 34
  • Hissi: Rappu 6 A
  • Valmistumisvuosi: 2010
  • Energialuokka: D2013
  • Lämmitys: Kaukolämpö
  • Ilmanvaihto: Asuntokohtainen tulo/poisto
  • Kiinteistöhuolto: Sulun Kiinteistönhoito Oy
  • Autopaikat: 34 kpl. Kohteessa sähköautojen latausmahdollisuus. Kysy lisää!
  • Laajakaistaoperaattori: Telia

Muut vapaat ja vapautuvat asunnot

Huoneistonumero Huoneistotyyppi Kerros Tila
2h+kk+s 46,0 2/4 Vapautumassa
2h+kk+s 46,0 2/4 Vapautumassa

Tupakointi on kiellettyä kaikissa asunnoissamme ja talojen yhteisissä tiloissa kuten rappukäytävissä sekä sauna- ja varastotiloissa.

Vuodesta 2019 lähtien tehdyissä uusissa asumisoikeussopimuksissa ja vuodesta 2020 tehdyissä vuokrasopimuksissa asukas on sitoutunut olemaan tupakoimatta kiinteistön alueella mahdollista erikseen osoitettua tupakointipaikkaa lukuun ottamatta. Uudiskohteissa savuttomuusehto on otettu käyttöön jo aiemmin.

Osa kiinteistöistämme on kokonaan savuttomia. Savuttomuus tarkoittaa sitä, että tupakointi on kiellettyä kiinteistössä, sen asunnoissa, parvekkeilla, piha-alueilla ja yhteisissä tiloissa.

Jätä meille asuntohakemus

Täyttämällä hakemuksen voit hakea meiltä vuokra-asuntoa, jättää asumisoikeushakemuksen sekä vapaisiin ja vapautuviin asuntoihin että varattuihin asumisoikeuskohteisiin. Saat asuntotarjouksen heti kun voimme tarjota toiveitasi vastaavaa asuntoa. Mikäli sinulla on kysyttävää, otathan yhteyttä asunnon tai kohteen myyntineuvottelijaan.

Tutustu asuntoon ennen päätöstä

Voit tutustua asuntoon ensin ja päättää vasta sitten, haluatko tehdä kanssamme sopimuksen. Mikäli olet hyväksynyt asumisoikeusasunnon asuntotarjouksen, pyrimme järjestämään sinulle mahdollisuuden tutustua asuntoon jo tarjouskierroksen aikana. Järjestämme jonkin verran myös yleisiä näyttöjä vapaissa asunnoissamme. Uudiskohteissa ei valitettavasti voi järjestää vastaavanlaisesti näyttöjä kuin jo valmistuneissa kohteissa.