Asumisoikeusasunnot, Haakoninlahdenkatu 19, Kruunuvuorenranta, Laajasalo, 00590, Helsinki

Rakenteilla uusi viihtyisä asumisoikeuskohde merelliseen Kruunuvuorenrantaan

Helsingin Kruunuvuorenrantaan on rakenteilla uusia laadukkaita asumisoikeusasuntoja. Osoitteeseen Haakoninlahdenkatu 19 valmistuu kaikkiaan 68 asumisoikeusasuntoa. Kattavasta asuntovalikoimasta löytyy vaihtoehtoja kompakteista yksiöistä tilaviin viiden huoneen asuntoihin asti.

Asunnoissa on hyvin suunnitellut pohjaratkaisut ja modernit pintamateriaalit. Osassa asunnoista on oma sauna lisäämässä asumismukavuutta. Asukkaiden yhteiskäytössä on lastenvaunu- ja ulkoiluvälinevarastot, kuivaushuone, pesula, talosauna sekä kerhohuone. Lisäksi jokaiselle asunnolle kuuluu irtaimistovarasto.

Kävelymatkan päässä asunnoista sijaitsee lähikauppa. Lyhyen ajomatkan päässä Laajasalossa sijaitsee myös kauppakeskus Saari. Lähistölle on myös rakenteilla Kruunuvuorenrannan palvelukortteli, johon tulee suomen- ja ruotsinkielinen peruskoulu, päiväkoti sekä nuoriso- ja liikuntatiloja.

Alueelta pääsee kulkemaan eri puolille pääkaupunkiseutua omalla autolla sekä julkisilla kulkuvälineillä. Bussit kulkevat Kruunuvuorenrannasta Laajasalon kautta Herttoniemen metroasemalle, josta matka jatkuu kätevästi eteenpäin. Tulevaisuudessa Kruunuvuorenrannasta pääsee Helsingin keskustaan ratikalla vartissa, kun Kruunusillat-raitioyhteys valmistuu.

Näin haet asumisoikeusasuntoa Haakoninlahdenkatu 19:stä

Huoneistovalikoima

Huoneistotyyppi kpl
1h+kt 30,5 — 35 13
2h+kt 46 — 53,5 12
2h+kt+s 48,5 — 48,5 3
3h+kt 65 — 72 8
3h+kt+s 65 — 75,5 17
3h+kt+s+parvi 160,5 — 160,5 1
4h+kt+s 89,5 — 99,5 11
5h+k+s 124 — 126 2
5h+kt+s 104,5 — 104,5 1

Huom! Kohde-esitteen tiedot ovat esitteen laatimishetkeltä. Osa tiedoista on saattanut muuttua.

Yhteydenotot
Myynti Minna Pimenov +358409222681 (vain puhelut) minna.pimenov@ta.fi
Kohteen perustiedot
  • Osoite: Haakoninlahdenkatu 19
  • Postinumero: 00590
  • Kaupunki: Helsinki
  • Kaupunginosa: Laajasalo
  • Kaupunginosan tarkenne: Kruunuvuorenranta
  • Asuntoja: 68
  • Arvioitu valmistuminen: 30.11.2026
  • Uudiskohde: Kyllä
  • Energialuokka: A2018
  • Talotyyppi: Kerrostalo
  • Lämmitysmuoto: Kaukolämpö
  • Ilmanvaihtomuoto: Keskitetty tulo/poisto
  • Hissi: Rappu 19 A, Rappu 19 C, Rappu 19 B
  • Talosauna: Kyllä
  • Autopaikat: 42 kpl
Yhteystiedot
Myynti
Minna Pimenov +358409222681 minna.pimenov@ta.fi
Kiinteistösihteeri
Soile Lappi +3584577343854 soile.lappi@ta.fi

Huolto
Huollon yhteystiedot löydät kohteen ilmoitustaululta.

Asiakaspalvelukeskus
puh. 045 7734 3777, info@ta.fi

Huom. Puhelinnumeromme eivät vastaanota tekstiviestejä.

Kohteen vapaat ja vapautuvat asunnot

Huoneistonumero Huoneistotyyppi Kerros Tila
2h+kt 53,5 2/9 Vapautumassa
3h+kt 66,5 2/9 Vapautumassa
3h+kt+s 75,5 2/9 Vapautumassa
3h+kt+s 75,5 3/9 Vapautumassa
2h+kt 53,5 4/9 Vapautumassa
3h+kt+s 75,5 4/9 Vapautumassa
2h+kt 53,5 5/9 Vapautumassa
3h+kt+s 65,0 2/9 Vapautumassa
2h+kt 46,0 2/9 Vapautumassa
3h+kt 72,0 3/9 Vapautumassa
3h+kt+s 65,0 3/9 Vapautumassa
3h+kt+s 75,0 1/9 Vapautumassa
3h+kt+s 75,0 2/9 Vapautumassa
3h+kt+s 75,0 3/9 Vapautumassa
3h+kt+s 75,0 4/9 Vapautumassa
3h+kt+s 75,0 7/9 Vapautumassa

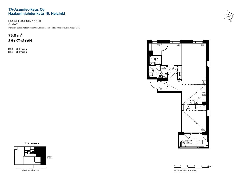
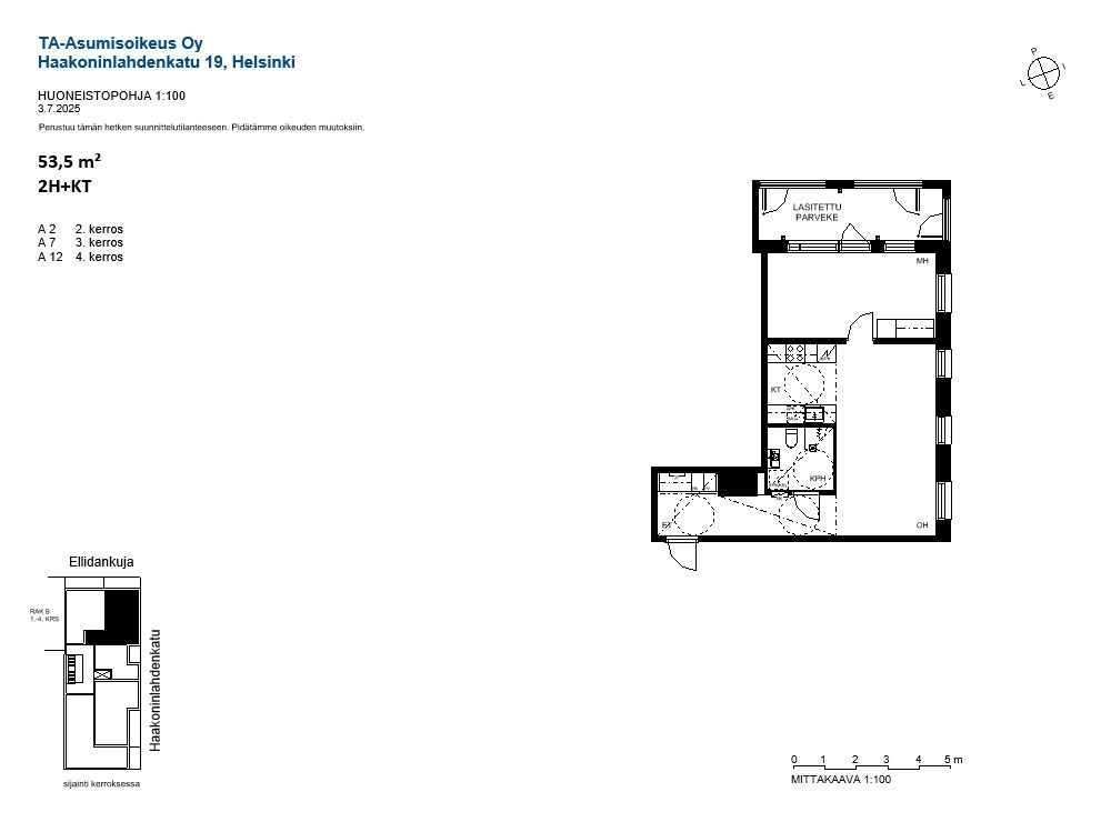
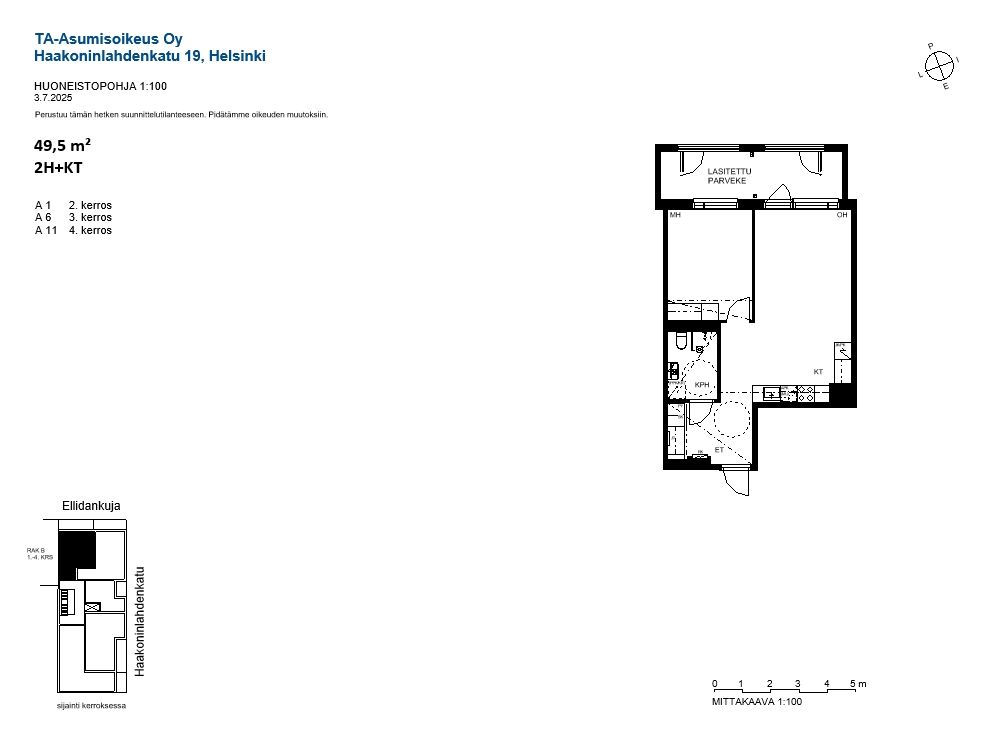
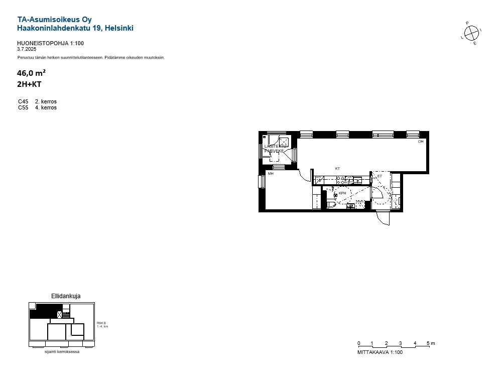
Huoneistot ja pohjakuvat

Kohteen kaikki huoneistot, sekä vapaat että varatut. Voit hakea myös huoneistoa, joka on varattuna. Varattuja huoneistoja tarjotaan hakijoille sitä mukaa kun niitä vapautuu.

Huoneistonumero Huoneistotyyppi Kerros Talotyyppi Pohja
Talo A
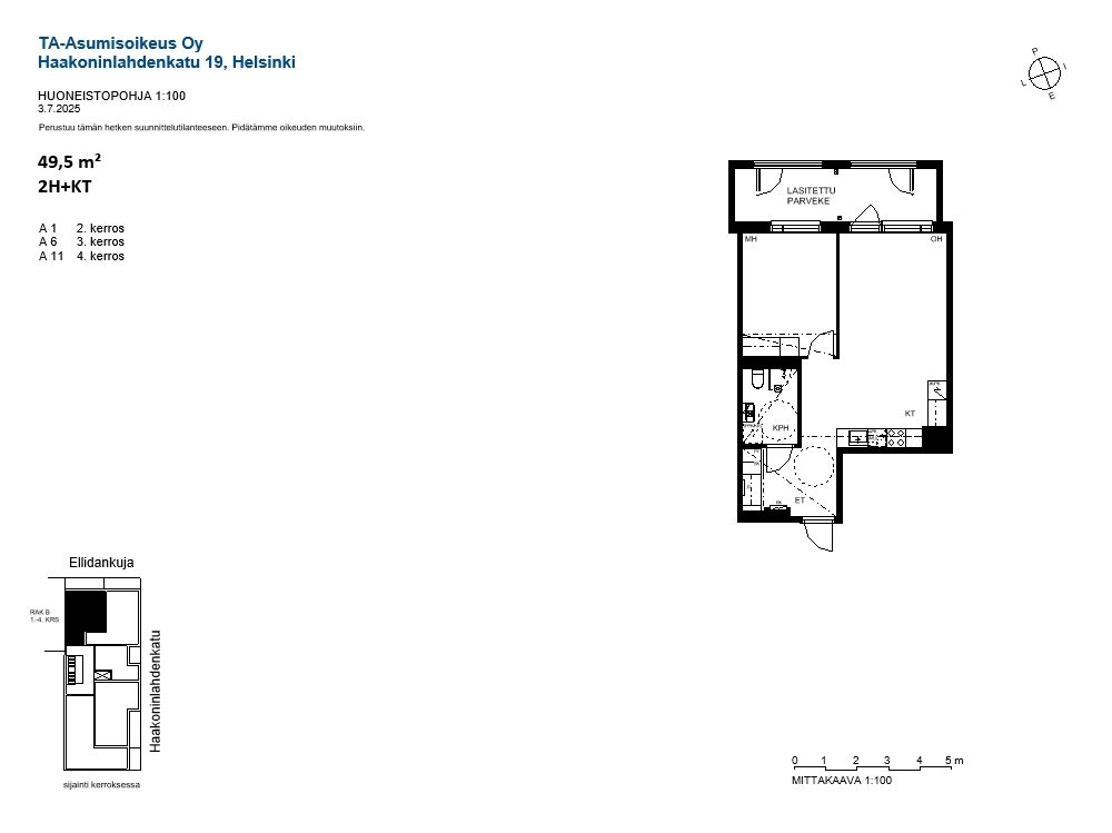
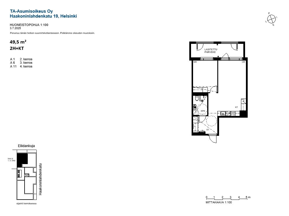
A 1 2h+kt 49,5 m² 2/9 Kerrostalo
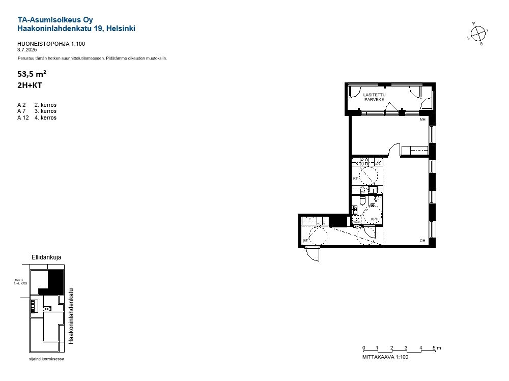
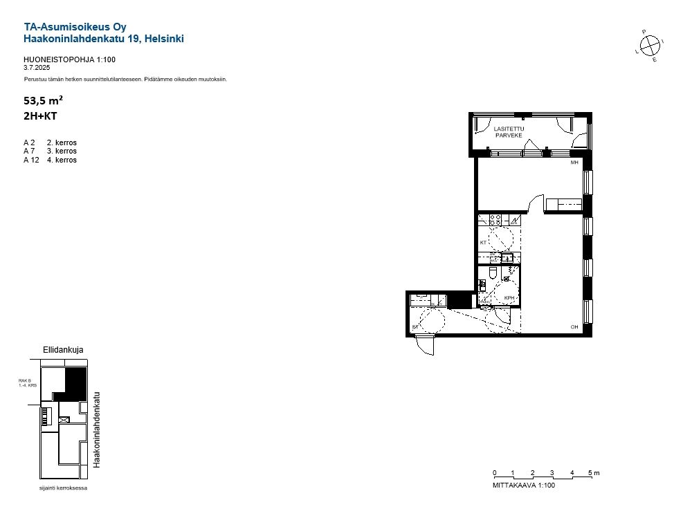
A 2 2h+kt 53,5 m² 2/9 Kerrostalo
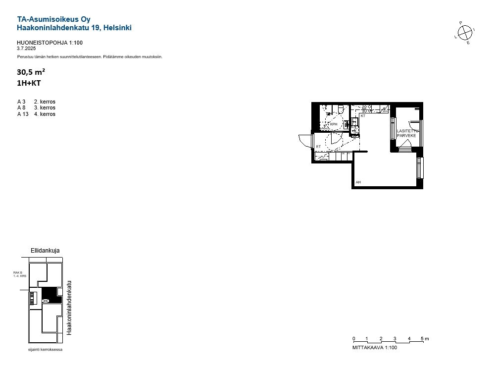
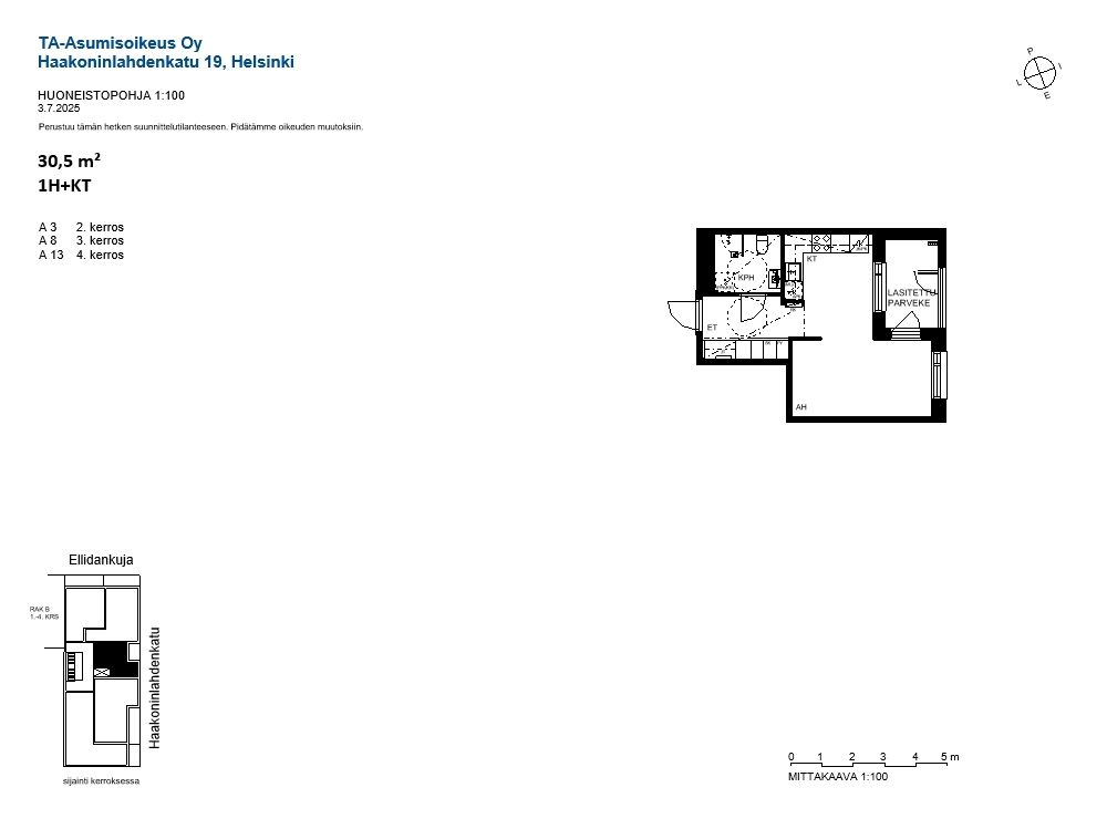
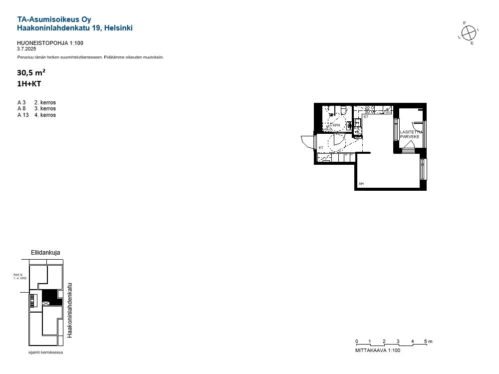
A 3 1h+kt 30,5 m² 2/9 Kerrostalo
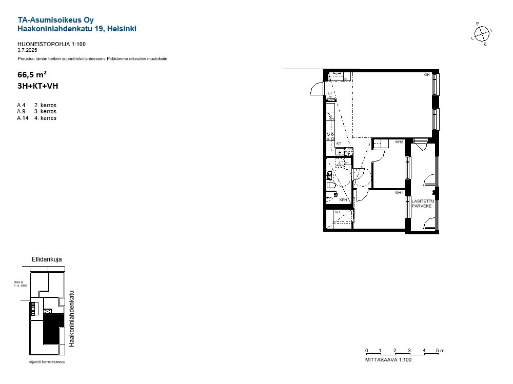
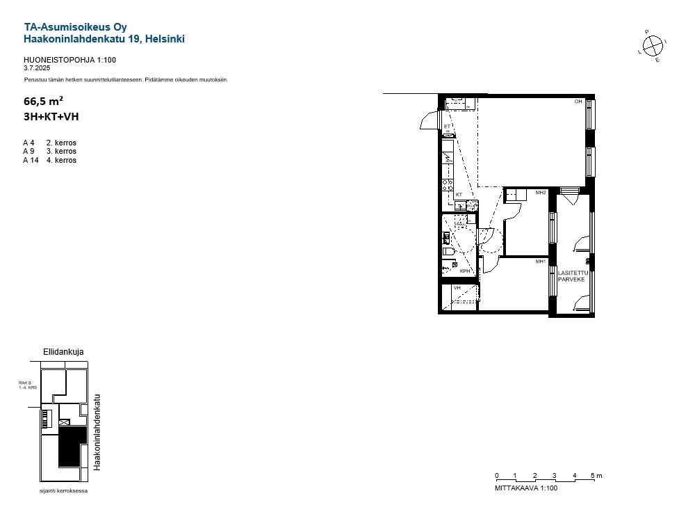
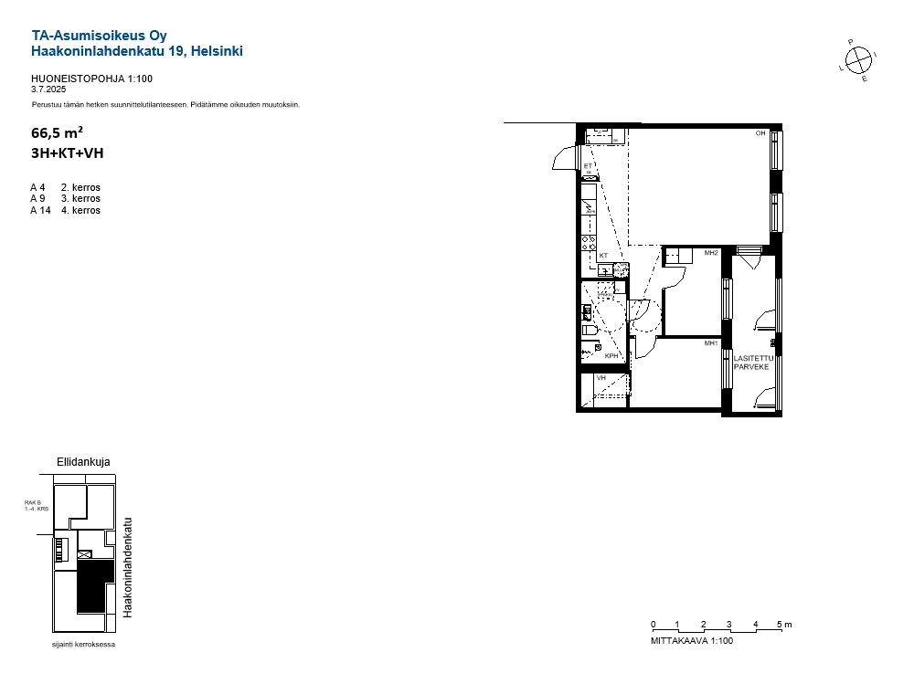
A 4 3h+kt 66,5 m² 2/9 Kerrostalo
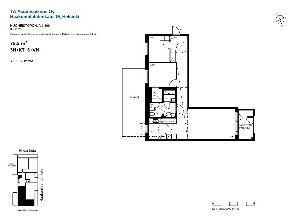
A 5 3h+kt+s 75,5 m² 2/9 Kerrostalo
A 6 2h+kt 49,5 m² 3/9 Kerrostalo
A 7 2h+kt 53,5 m² 3/9 Kerrostalo
A 8 1h+kt 30,5 m² 3/9 Kerrostalo
A 9 3h+kt 66,5 m² 3/9 Kerrostalo
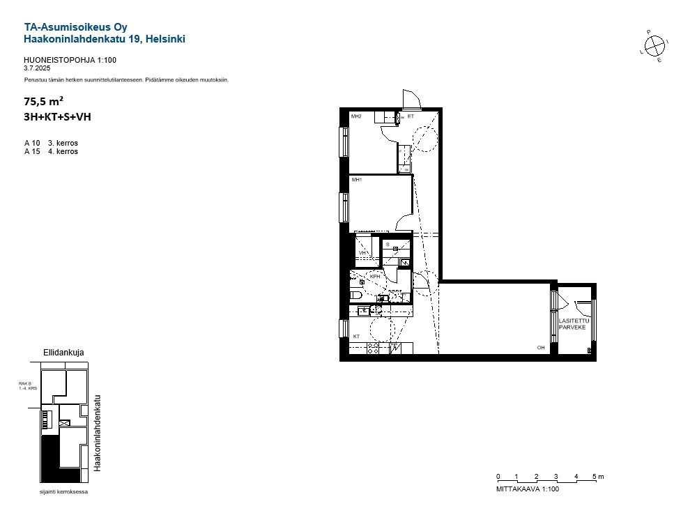
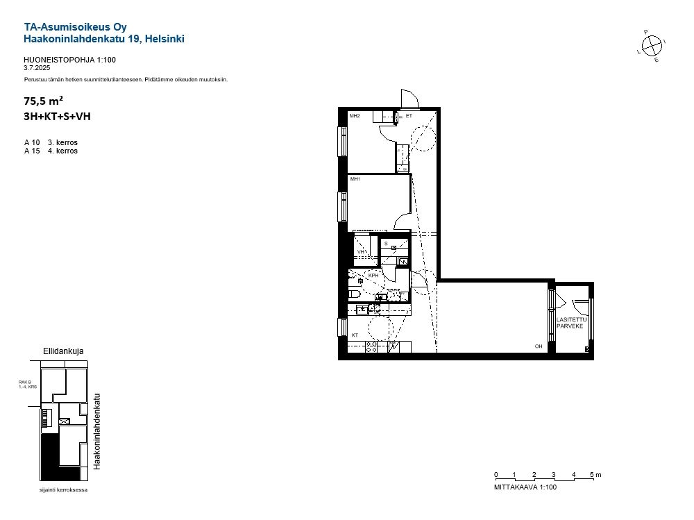
A 10 3h+kt+s 75,5 m² 3/9 Kerrostalo
A 11 2h+kt 49,5 m² 4/9 Kerrostalo
A 12 2h+kt 53,5 m² 4/9 Kerrostalo
A 13 1h+kt 30,5 m² 4/9 Kerrostalo
A 14 3h+kt 66,5 m² 4/9 Kerrostalo
A 15 3h+kt+s 75,5 m² 4/9 Kerrostalo
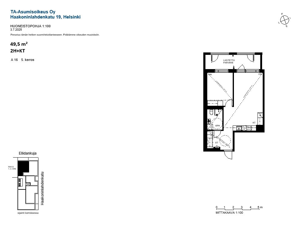
A 16 2h+kt 49,5 m² 5/9 Kerrostalo
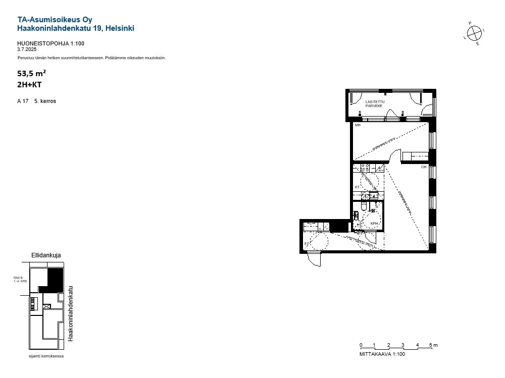
A 17 2h+kt 53,5 m² 5/9 Kerrostalo
A 18 1h+kt 30,5 m² 5/9 Kerrostalo
A 19 3h+kt 66,5 m² 5/9 Kerrostalo
A 20 3h+kt+s 75,5 m² 5/9 Kerrostalo
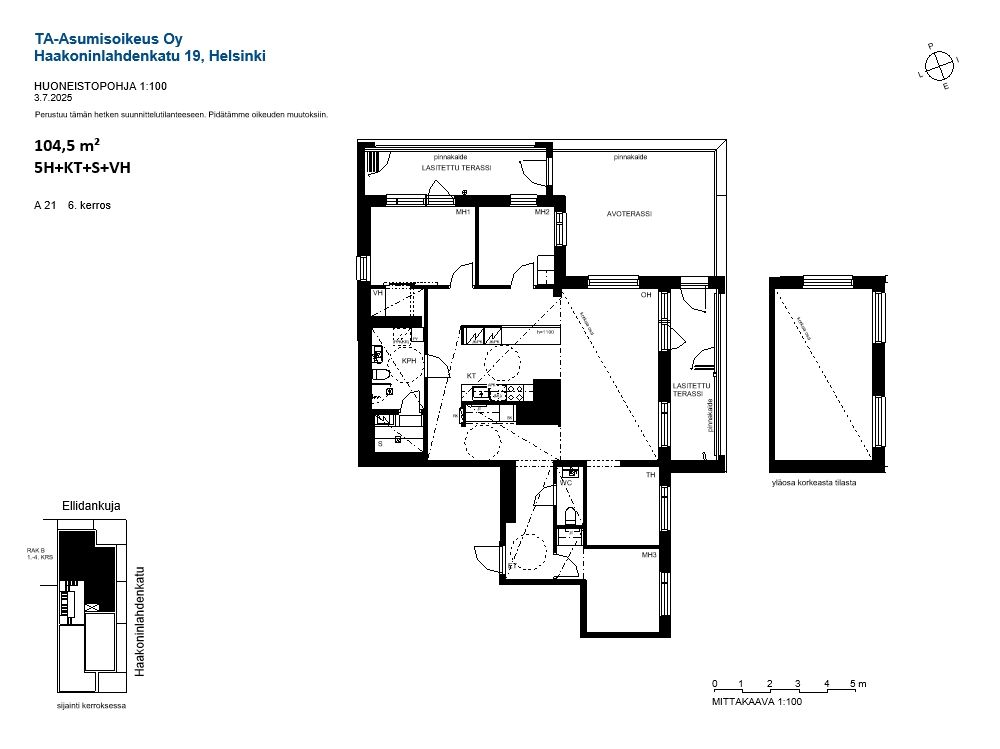
A 21 5h+kt+s 104,5 m² 6/9 Kerrostalo
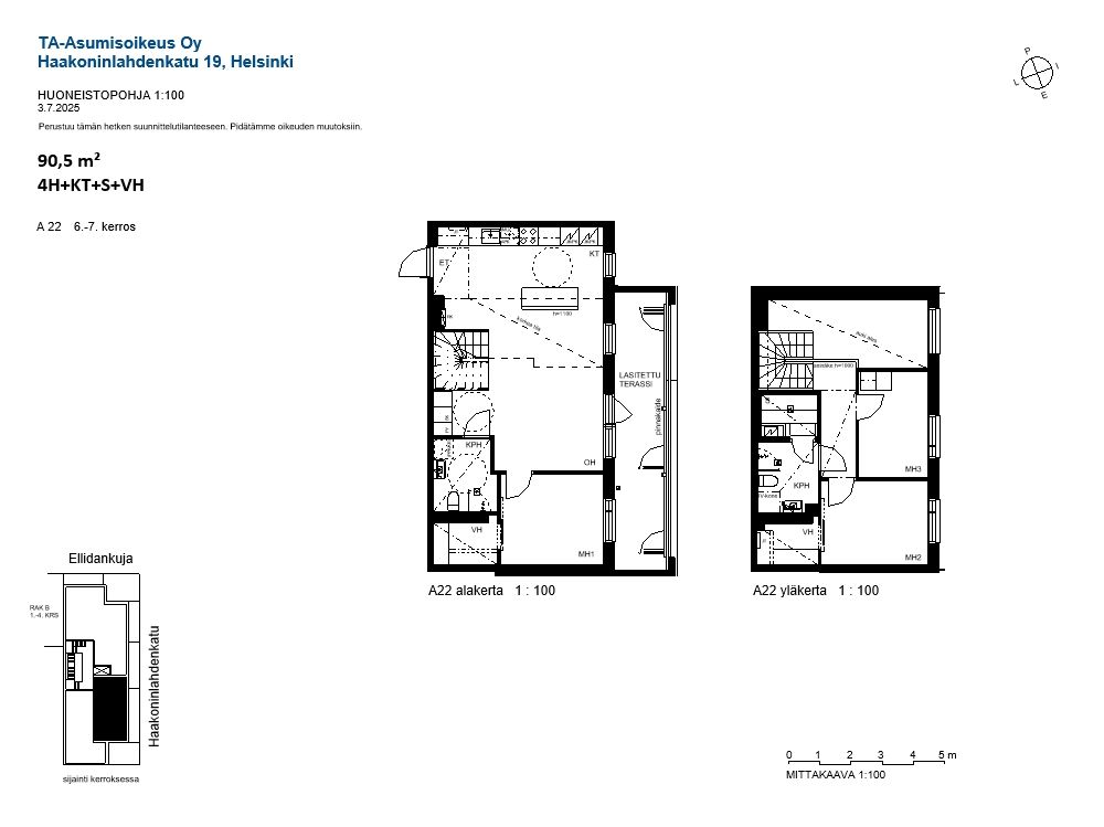
A 22 4h+kt+s 90,5 m² 6-7/9 Kerrostalo
A 23 4h+kt+s 97,0 m² 6-7/9 Kerrostalo
Talo B
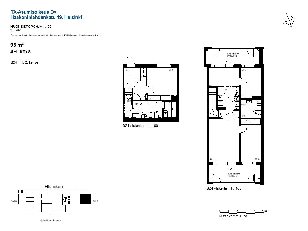
B 24 4h+kt+s 96,0 m² 1-2/9 Kerrostalo
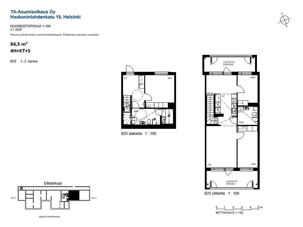
B 25 4h+kt+s 94,5 m² 1-2/9 Kerrostalo
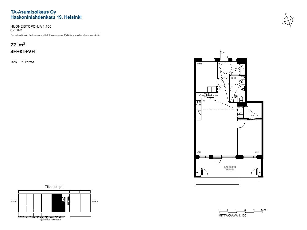
B 26 3h+kt 72,0 m² 2/9 Kerrostalo
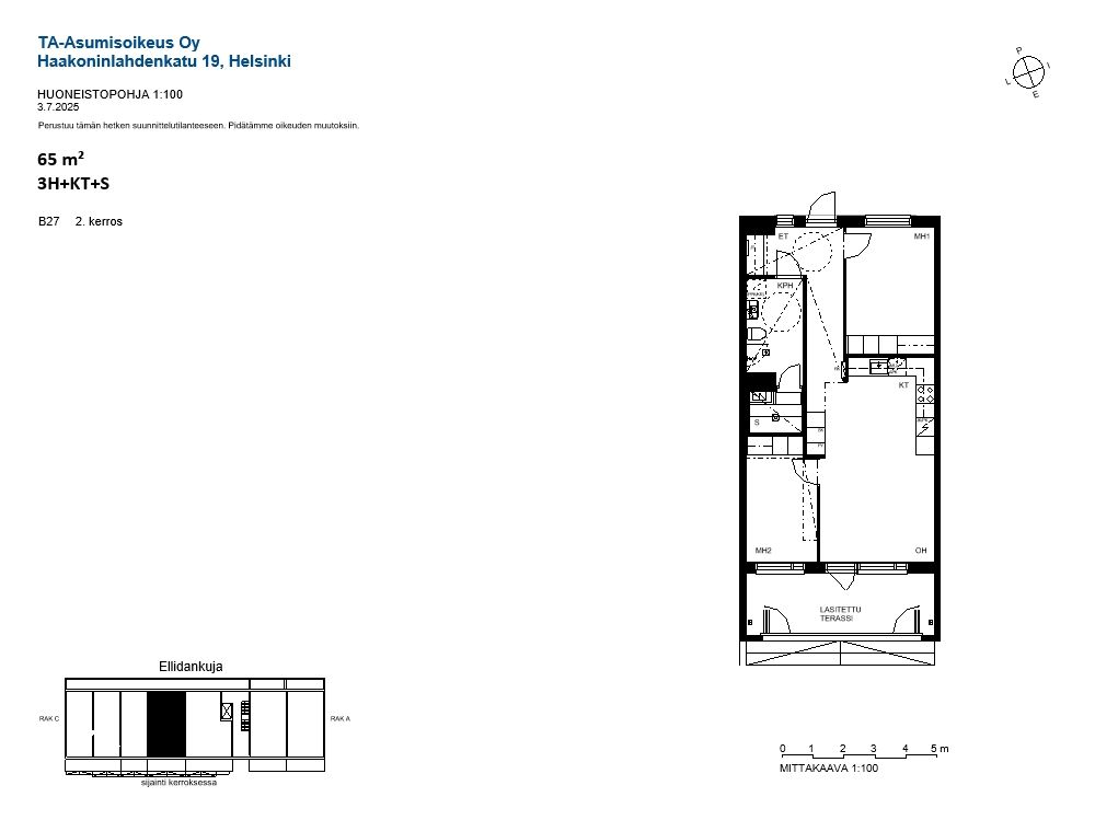
B 27 3h+kt+s 65,0 m² 2/9 Kerrostalo
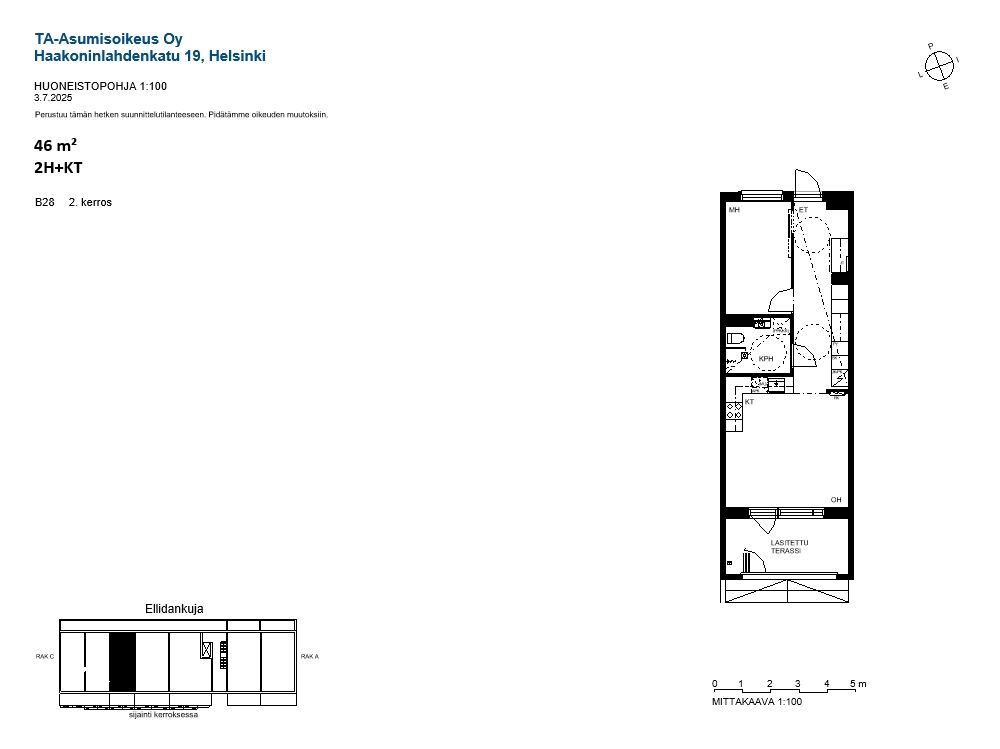
B 28 2h+kt 46,0 m² 2/9 Kerrostalo
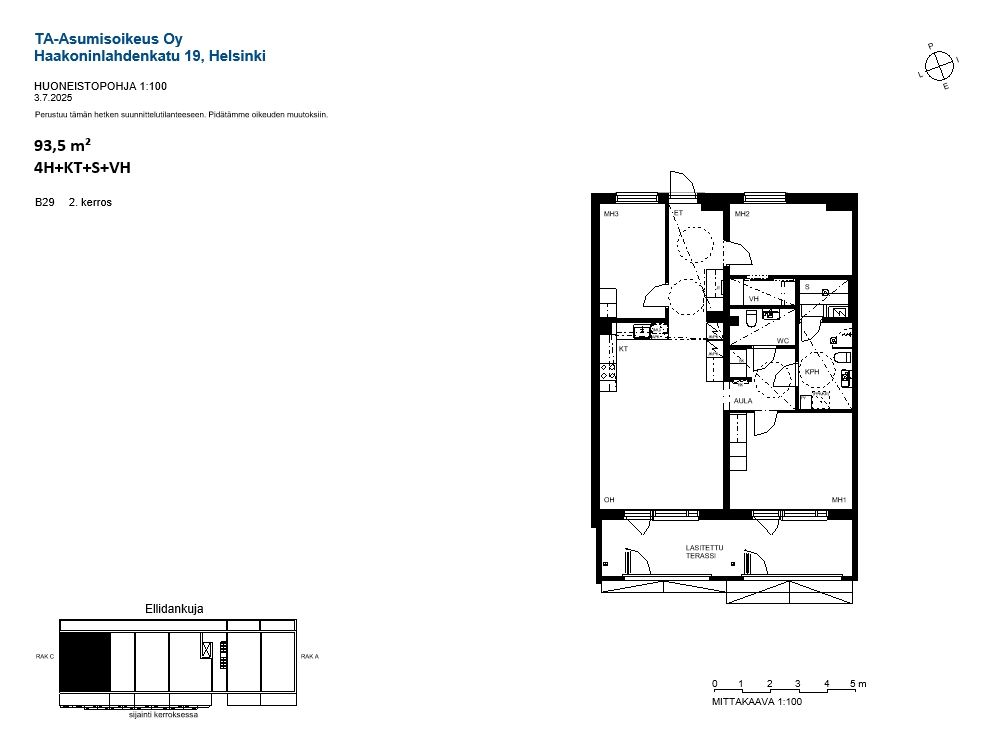
B 29 4h+kt+s 93,5 m² 2/9 Kerrostalo
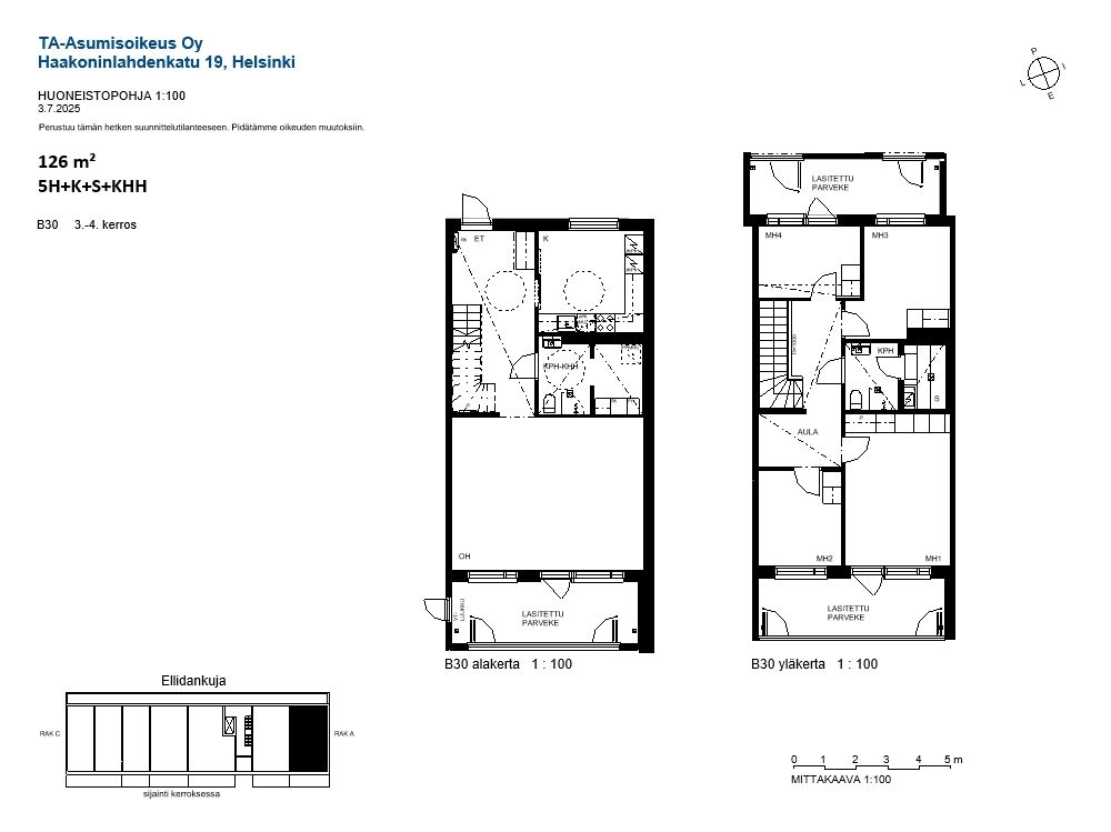
B 30 5h+k+s 126,0 m² 3-4/9 Kerrostalo
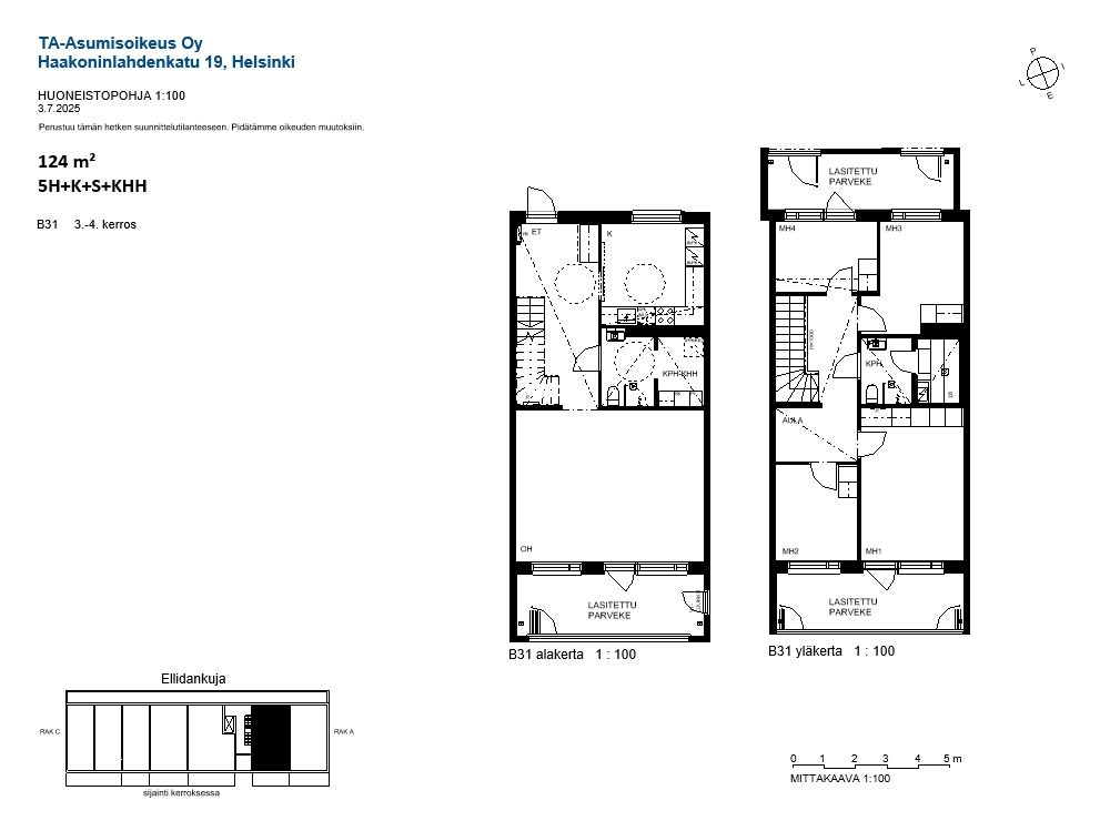
B 31 5h+k+s 124,0 m² 3-4/9 Kerrostalo
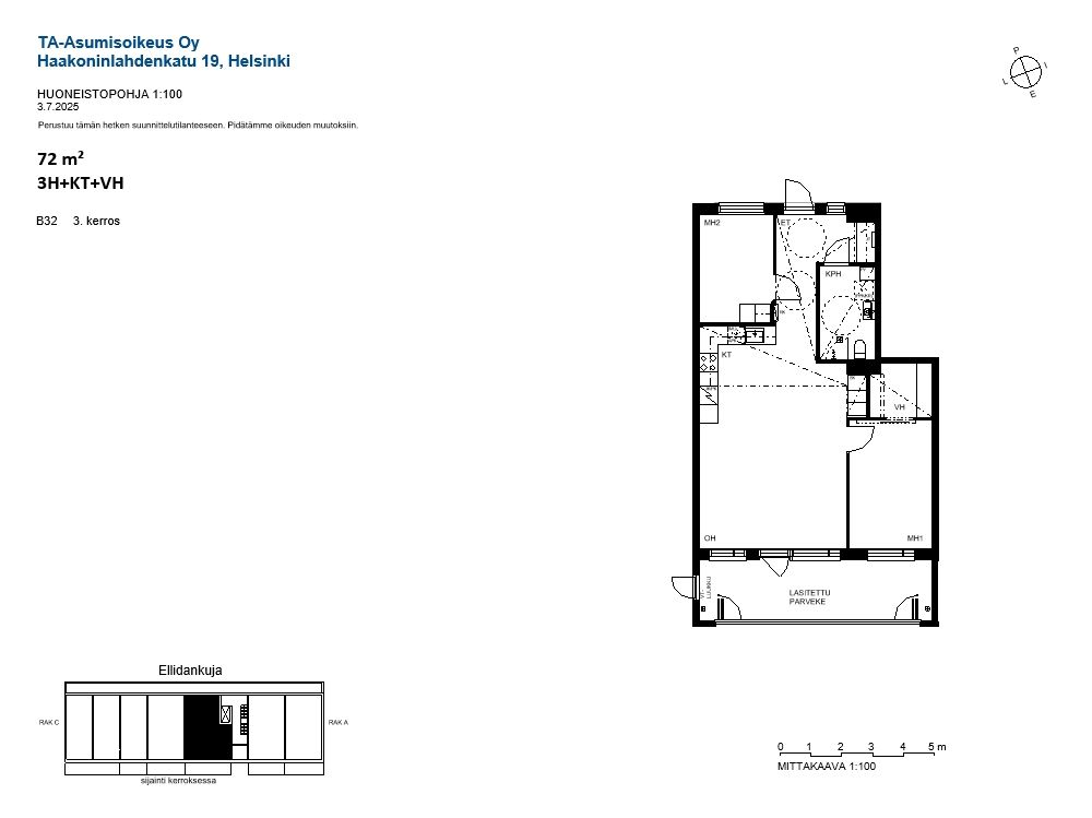
B 32 3h+kt 72,0 m² 3/9 Kerrostalo
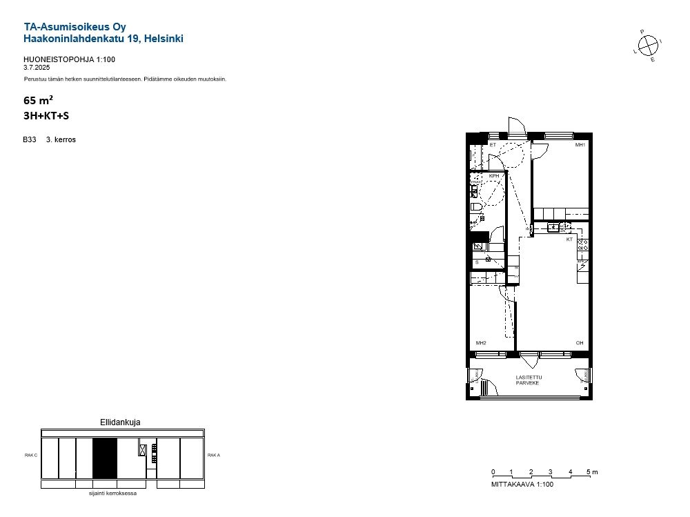
B 33 3h+kt+s 65,0 m² 3/9 Kerrostalo
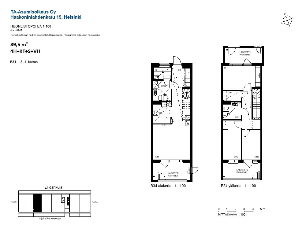
B 34 4h+kt+s 89,5 m² 3-4/9 Kerrostalo
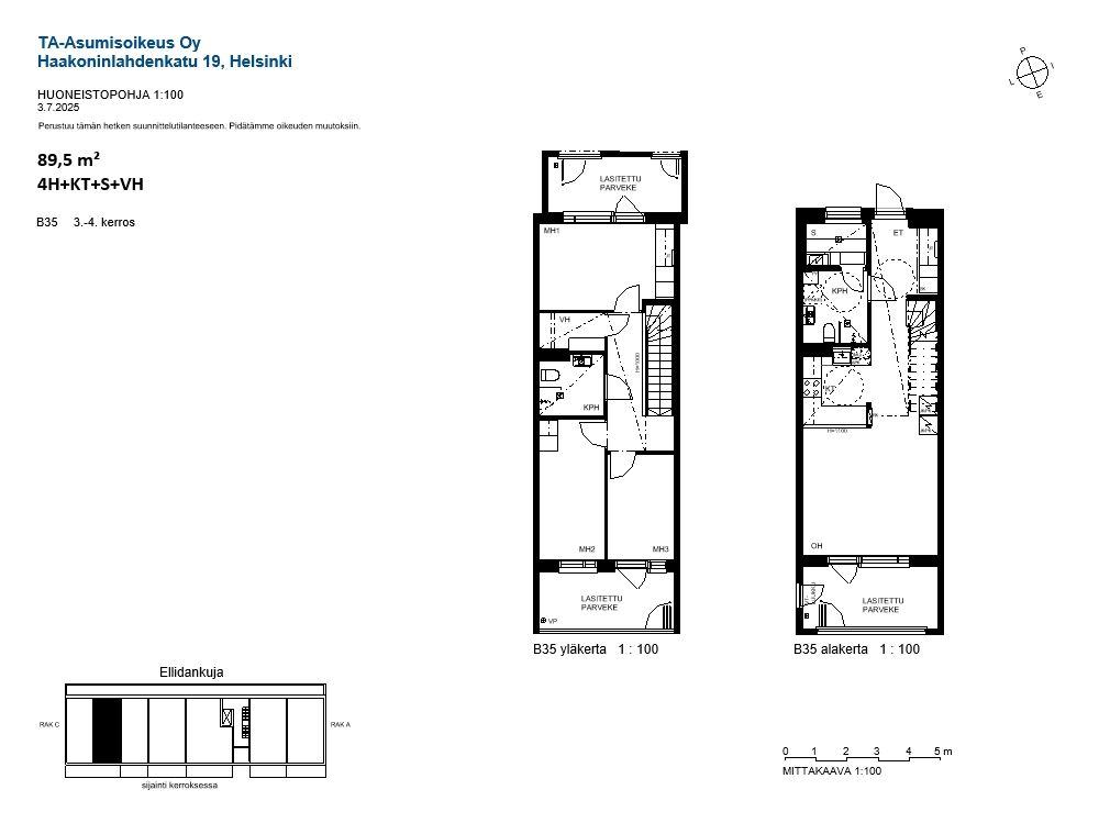
B 35 4h+kt+s 89,5 m² 3-4/9 Kerrostalo
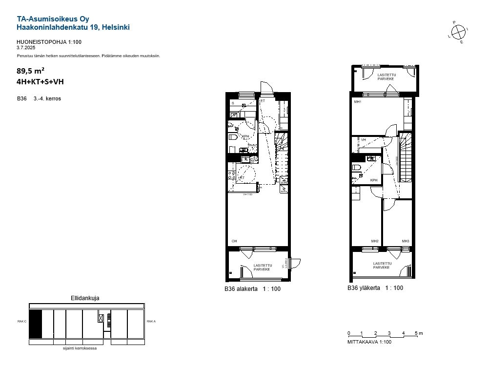
B 36 4h+kt+s 89,5 m² 3-4/9 Kerrostalo
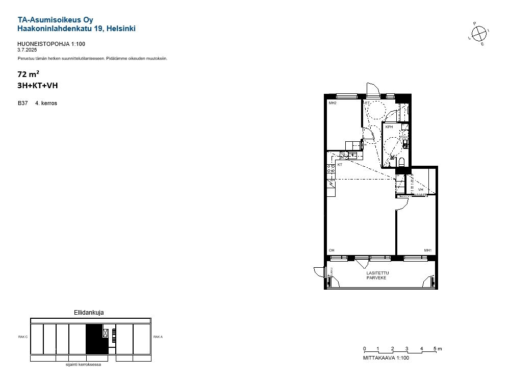
B 37 3h+kt 72,0 m² 4/9 Kerrostalo
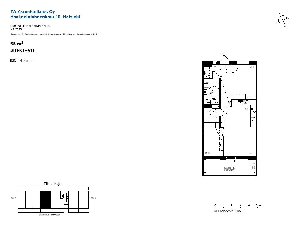
B 38 3h+kt 65,0 m² 4/9 Kerrostalo
Talo C
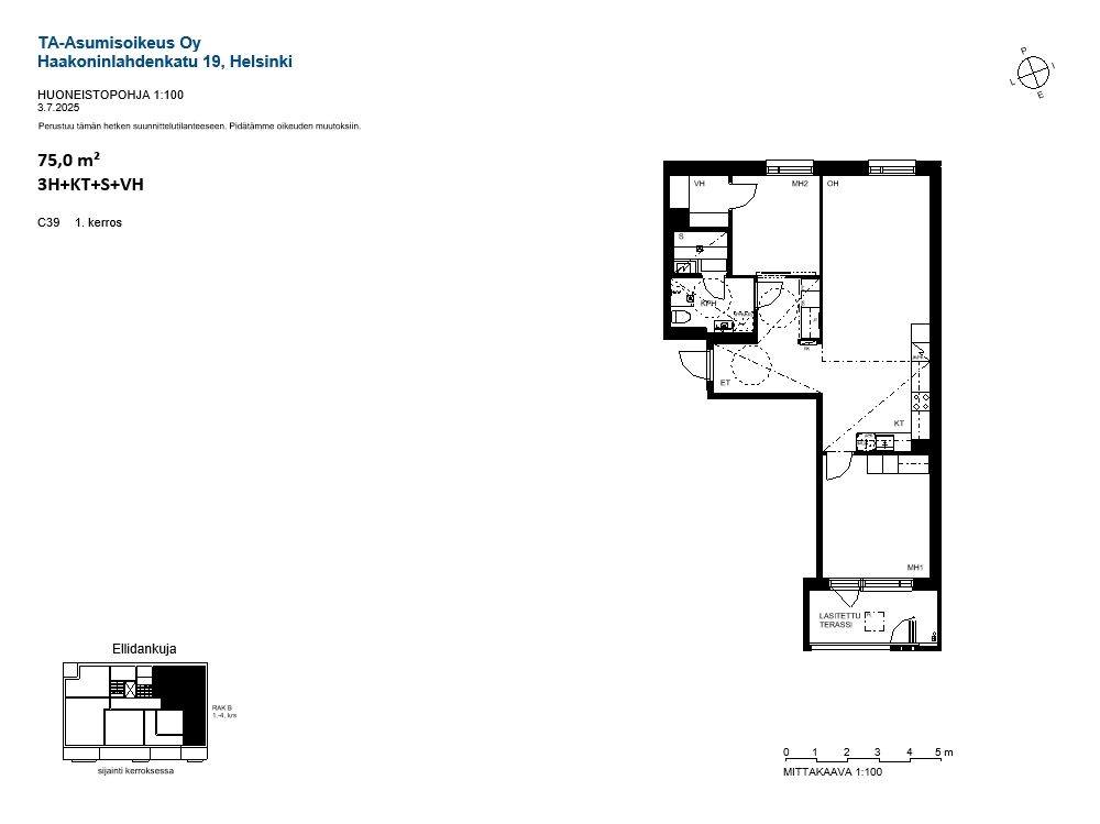
C 39 3h+kt+s 75,0 m² 1/9 Kerrostalo
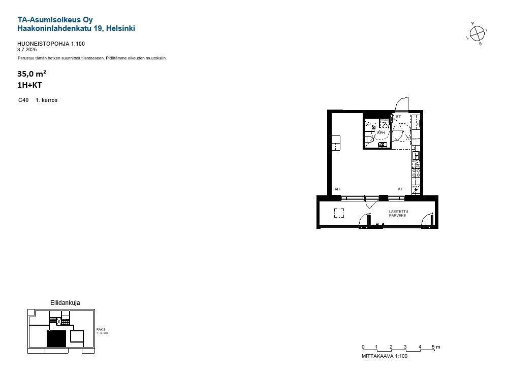
C 40 1h+kt 35,0 m² 1/9 Kerrostalo
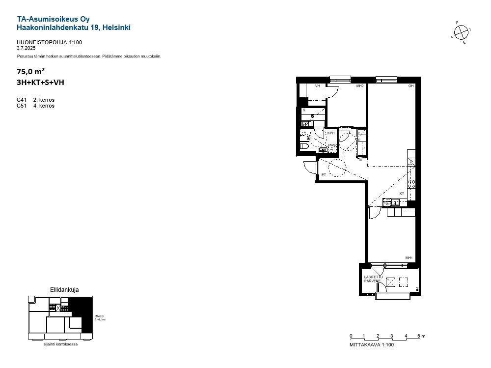
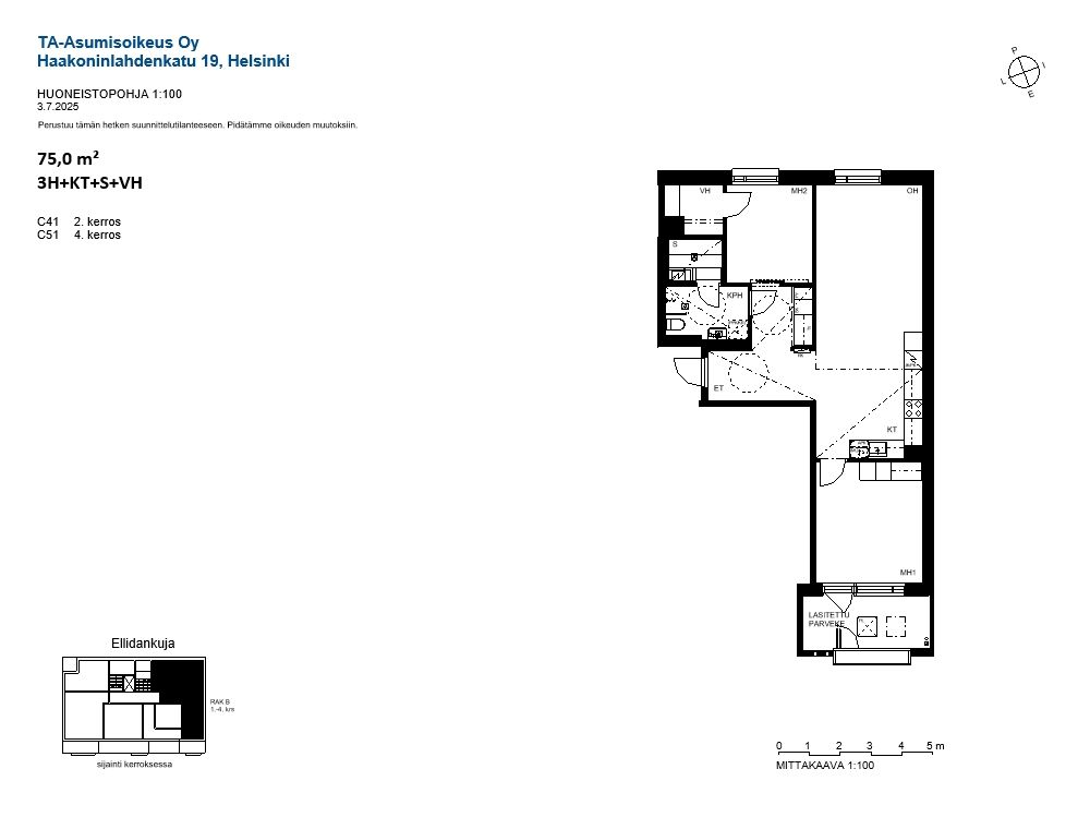
C 41 3h+kt+s 75,0 m² 2/9 Kerrostalo
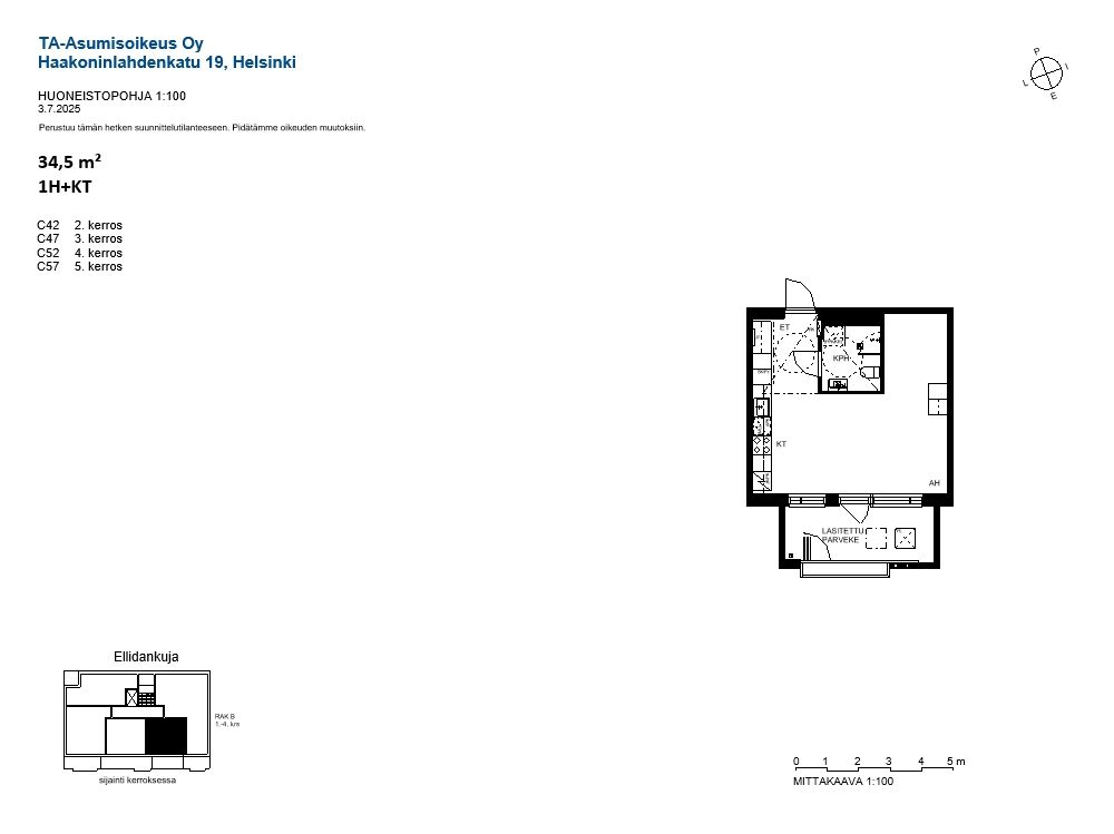
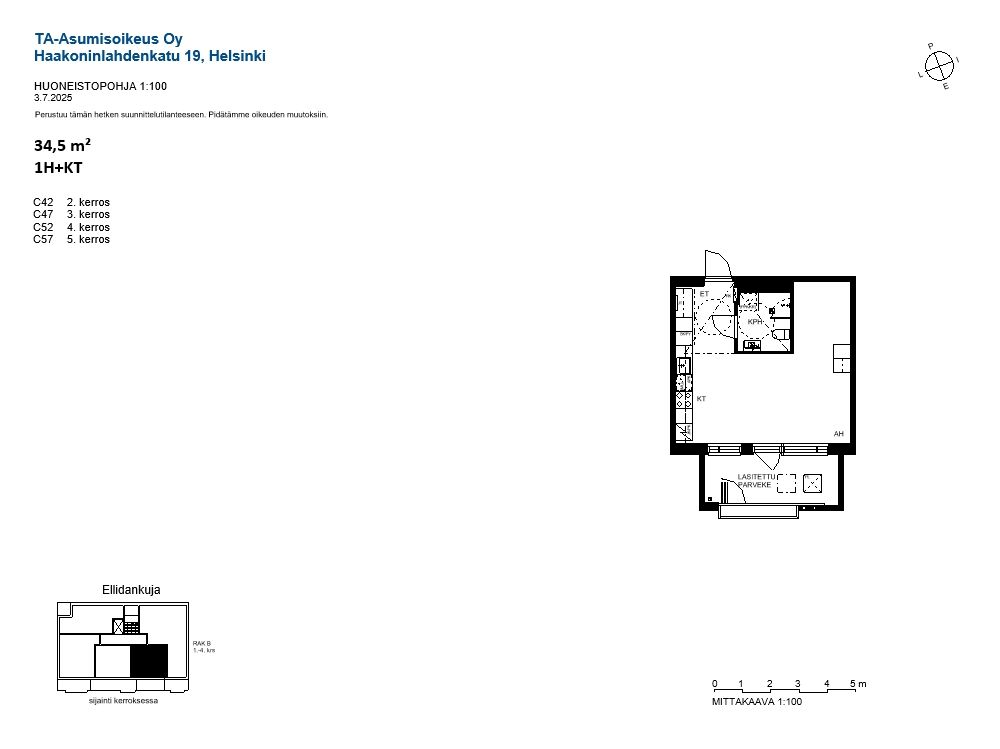
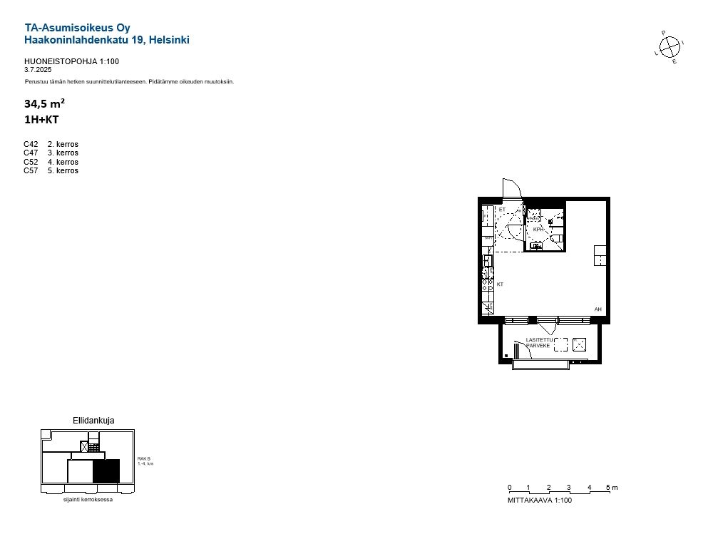
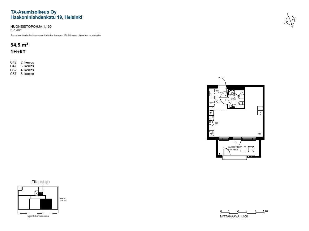
C 42 1h+kt 34,5 m² 2/9 Kerrostalo
C 43 1h+kt 35,0 m² 2/9 Kerrostalo
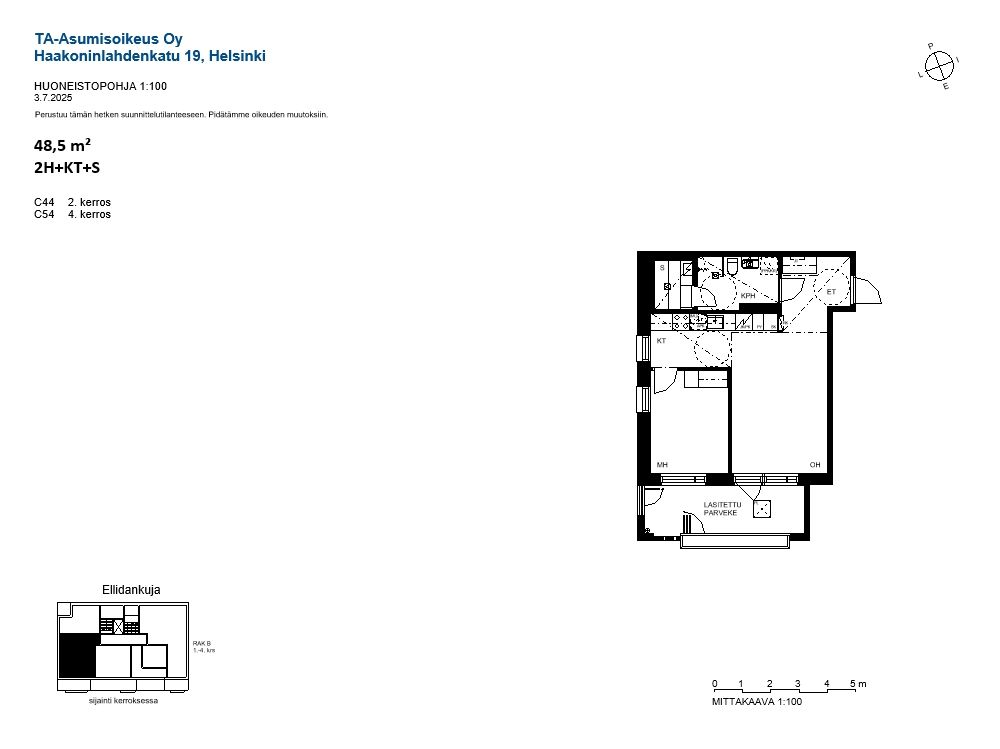
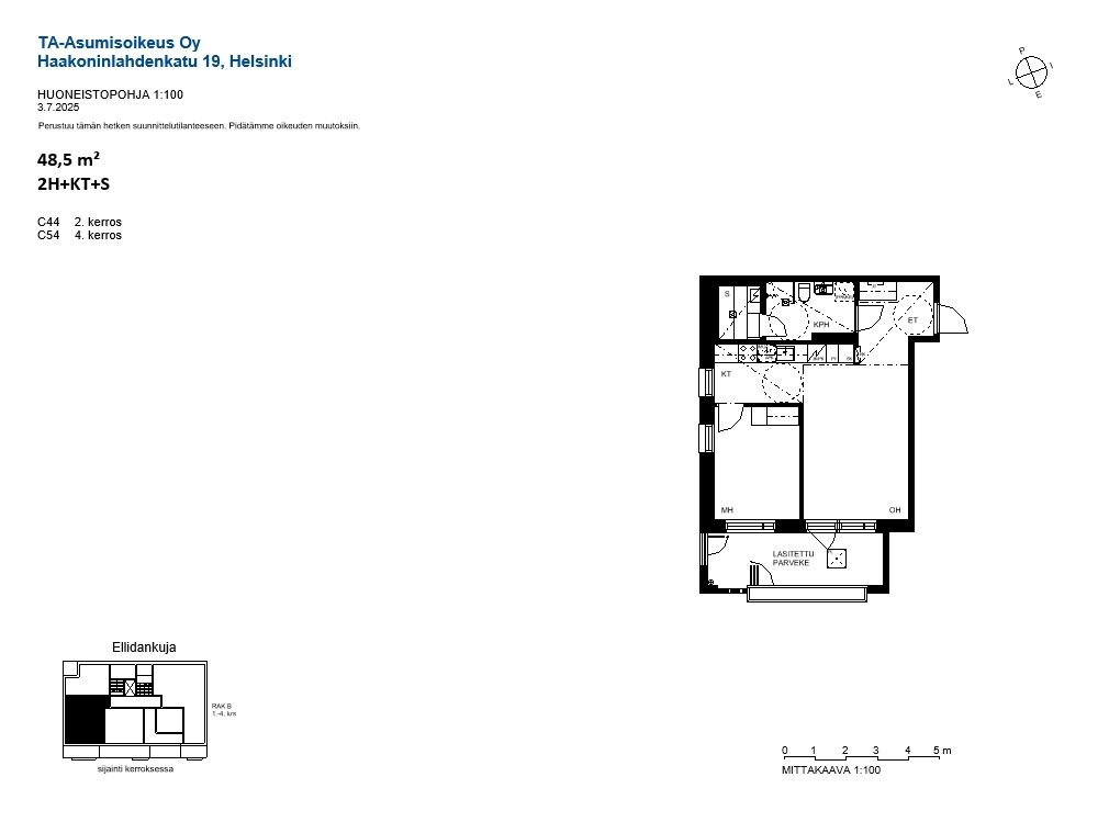
C 44 2h+kt+s 48,5 m² 2/9 Kerrostalo
C 45 2h+kt 46,0 m² 2/9 Kerrostalo
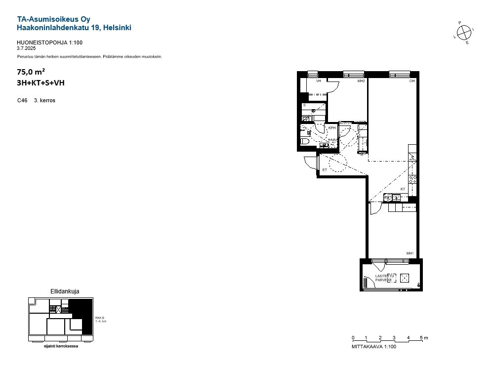
C 46 3h+kt+s 75,0 m² 3/9 Kerrostalo
C 47 1h+kt 34,5 m² 3/9 Kerrostalo
C 48 1h+kt 35,0 m² 3/9 Kerrostalo
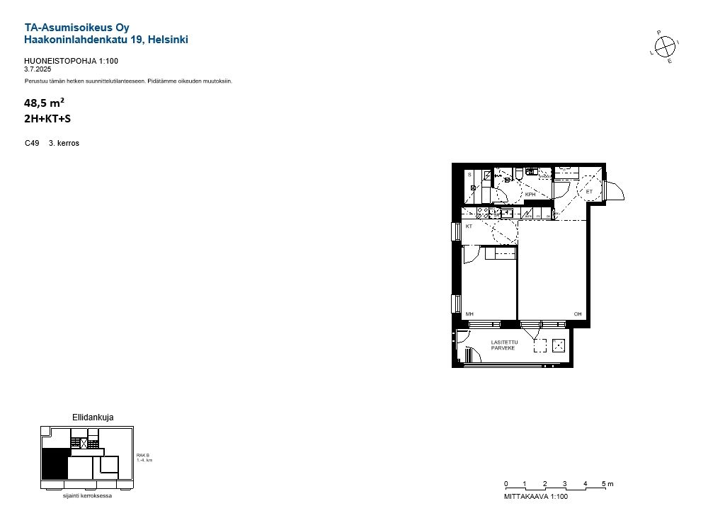
C 49 2h+kt+s 48,5 m² 3/9 Kerrostalo
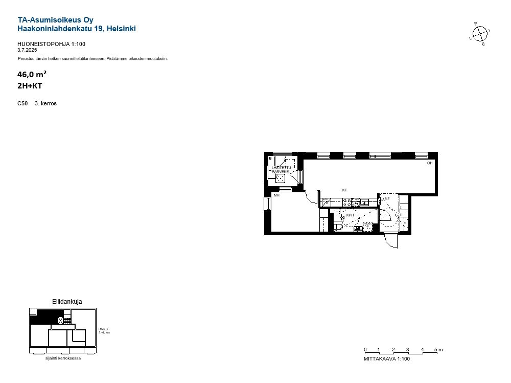
C 50 2h+kt 46,0 m² 3/9 Kerrostalo
C 51 3h+kt+s 75,0 m² 4/9 Kerrostalo
C 52 1h+kt 34,5 m² 4/9 Kerrostalo
C 53 1h+kt 35,0 m² 4/9 Kerrostalo
C 54 2h+kt+s 48,5 m² 4/9 Kerrostalo
C 55 2h+kt 46,0 m² 4/9 Kerrostalo
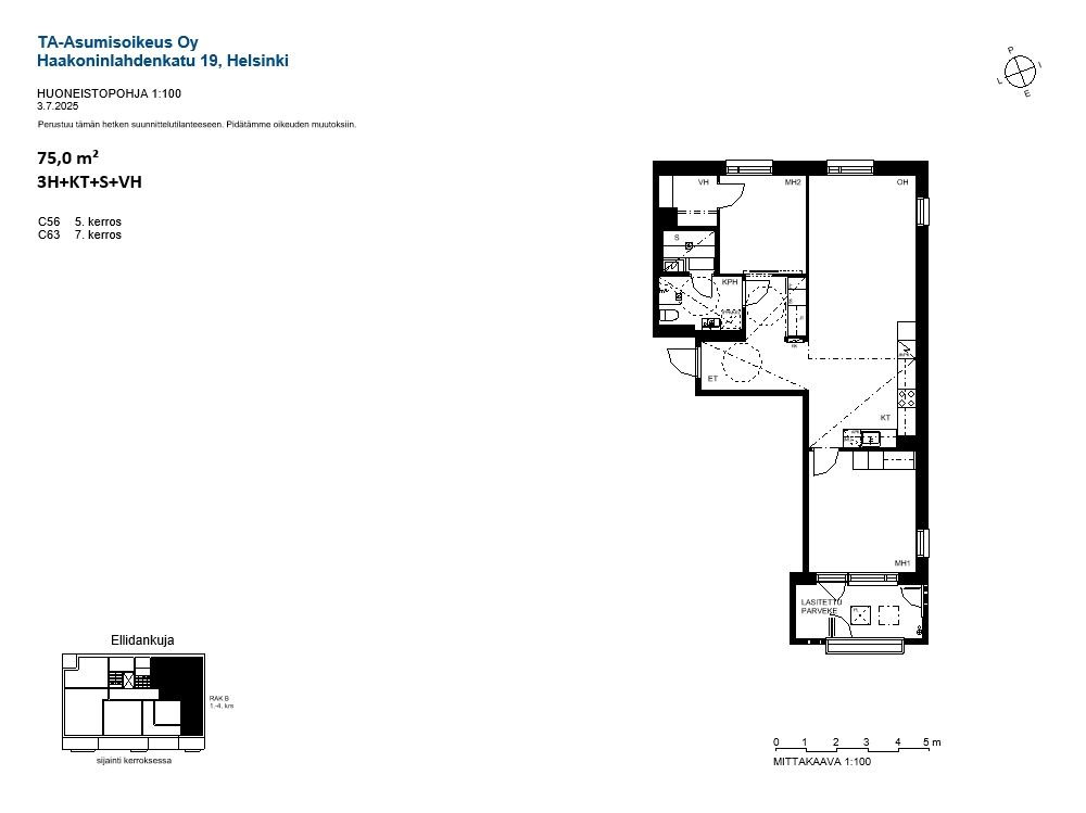
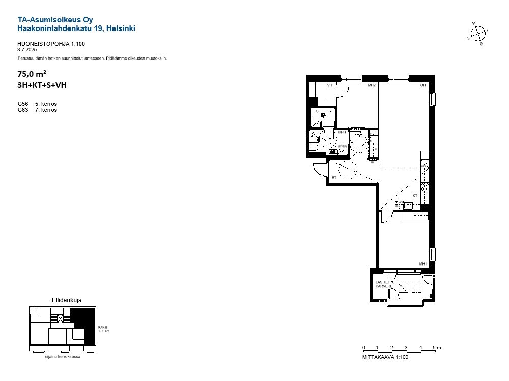
C 56 3h+kt+s 75,0 m² 5/9 Kerrostalo
C 57 1h+kt 34,5 m² 5/9 Kerrostalo
C 58 1h+kt 35,0 m² 5/9 Kerrostalo
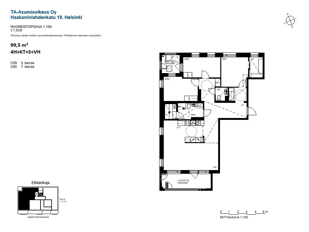
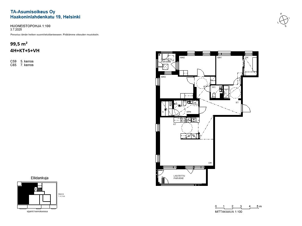
C 59 4h+kt+s 99,5 m² 5/9 Kerrostalo
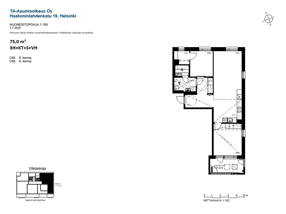
C 60 3h+kt+s 75,0 m² 6/9 Kerrostalo
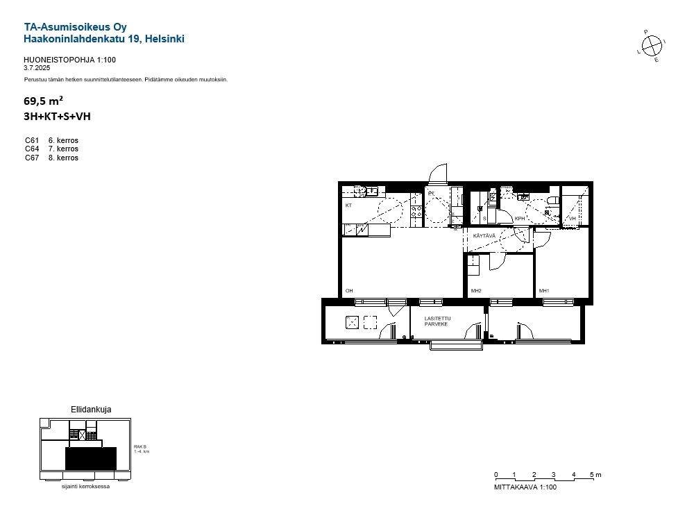
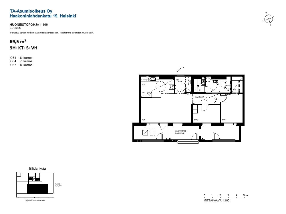
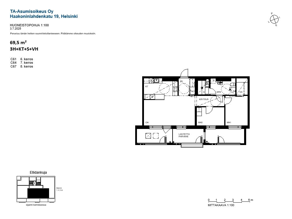
C 61 3h+kt+s 69,5 m² 6/9 Kerrostalo
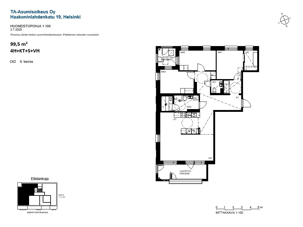
C 62 4h+kt+s 99,5 m² 6/9 Kerrostalo
C 63 3h+kt+s 75,0 m² 7/9 Kerrostalo
C 64 3h+kt+s 69,5 m² 7/9 Kerrostalo
C 65 4h+kt+s 99,5 m² 7/9 Kerrostalo
C 66 3h+kt+s 75,0 m² 8/9 Kerrostalo
C 67 3h+kt+s 69,5 m² 8/9 Kerrostalo
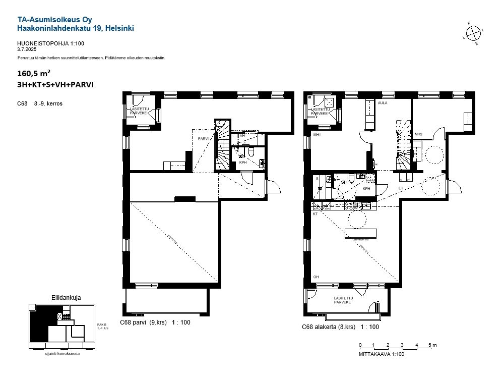
C 68 3h+kt+s+parvi 160,5 m² 8-9/9 Kerrostalo

Energiatodistukset

Hae kohteen energiatodistukset

Tupakointi on kiellettyä kaikissa asunnoissamme ja talojen yhteisissä tiloissa kuten rappukäytävissä sekä sauna- ja varastotiloissa.

Vuodesta 2019 lähtien tehdyissä uusissa asumisoikeussopimuksissa ja vuodesta 2020 tehdyissä vuokrasopimuksissa asukas on sitoutunut olemaan tupakoimatta kiinteistön alueella mahdollista erikseen osoitettua tupakointipaikkaa lukuun ottamatta. Uudiskohteissa savuttomuusehto on otettu käyttöön jo aiemmin.

Osa kiinteistöistämme on kokonaan savuttomia. Savuttomuus tarkoittaa sitä, että tupakointi on kiellettyä kiinteistössä, sen asunnoissa, parvekkeilla, piha-alueilla ja yhteisissä tiloissa.

Jätä meille asuntohakemus

Täyttämällä hakemuksen voit hakea meiltä vuokra-asuntoa, jättää asumisoikeushakemuksen sekä vapaisiin ja vapautuviin asuntoihin että varattuihin asumisoikeuskohteisiin. Saat asuntotarjouksen heti kun voimme tarjota toiveitasi vastaavaa asuntoa. Mikäli sinulla on kysyttävää, otathan yhteyttä asunnon tai kohteen myyntineuvottelijaan.

Tutustu asuntoon ennen päätöstä

Voit tutustua asuntoon ensin ja päättää vasta sitten, haluatko tehdä kanssamme sopimuksen. Mikäli olet hyväksynyt asumisoikeusasunnon asuntotarjouksen, pyrimme järjestämään sinulle mahdollisuuden tutustua asuntoon jo tarjouskierroksen aikana. Järjestämme jonkin verran myös yleisiä näyttöjä vapaissa asunnoissamme. Uudiskohteissa ei valitettavasti voi järjestää vastaavanlaisesti näyttöjä kuin jo valmistuneissa kohteissa.