Asumisoikeusasunnot, Hahlo 3, 7, Pajala, Tourula, 40100, Jyväskylä

Vakuusmaksu 250 €, kun teet sopimuksen Hahlo 3 ja 7 kohteen asuntoon viimeistään 31.1.2026 mennessä. Normaalisti vakuusmaksu on 2 kk:n käyttövastikkeen suuruinen. Etu koskee vain uusia sopimuksia.

Tourulan Pajalaan, entisen Kivääritehtaan alueelle, on rakenteilla uusia laadukkaita asumisoikeusasuntoja. Osoitteeseen Hahlo 3 ja 7 valmistuu kaksi asuinrakennusta, joihin tulee kaikkiaan 47 asumisoikeusasuntoa. Asuinrakennuksista toinen on kaksikerroksinen paritalo ja toinen kerrostalo, joka koostuu kahdesta neljä-viisikerroksisesta massasta, joiden välissä on kaksikerroksinen väliosa.

Taloon valmistuu myös monipuoliset yhteistilat: huoneistokohtaiset irtaimistovarastot, ulkoiluväline- ja lastenvaunuvarastot, kerhotila, sauna, pesula ja kuivaushuone. Rakennusten yhteyteen tulee myös pysäköintihalli. Kohteen asukkaille valmistuu yhteensä 26 kpl autopaikkoja, joista 24 kpl on hallipaikkoja ja loput 2 kpl pihapaikkoja.

Asunnot sijaitsevat ihanteellisella sijainnilla, lähellä keskustan ja Seppälän alueen monipuolisia palveluita sekä toimivia liikenneyhteyksiä. Alueella pärjää myös hyvin ilman omaa autoa hyvien kävely- ja pyöräteiden sekä joukkoliikenneyhteyksien vuoksi. Kivääritehtaan alue kuuluu valtakunnallisesti arvokkaaseen rakennettuun perintöön, ja alueen asukkaat pääsevätkin nauttimaan alueen kauniista kulttuurihistoriallisesta ympäristöstä, suojelluista rakennuksista sekä laadukkaista ja vehreistä, puistomaisista piha-alueista.

Asuntojen arvioitu valmistumisaika on 30.1.2026.

Asuntoihin on käynnissä jatkuva haku. Hakemuksella olevia hintarajaimia kannattaa käyttää vain harkitusti tai ei ollenkaan, sillä samankokoisten asuntojen hinnat vaihtelevat kerroksittain.

Vedenkuulutus mitataan huoneistotokohtaisesti. Vedestä maksetaan henkilölukuun perustuva vesimaksuennakko joka tasataan kulutuksen mukaisesti.

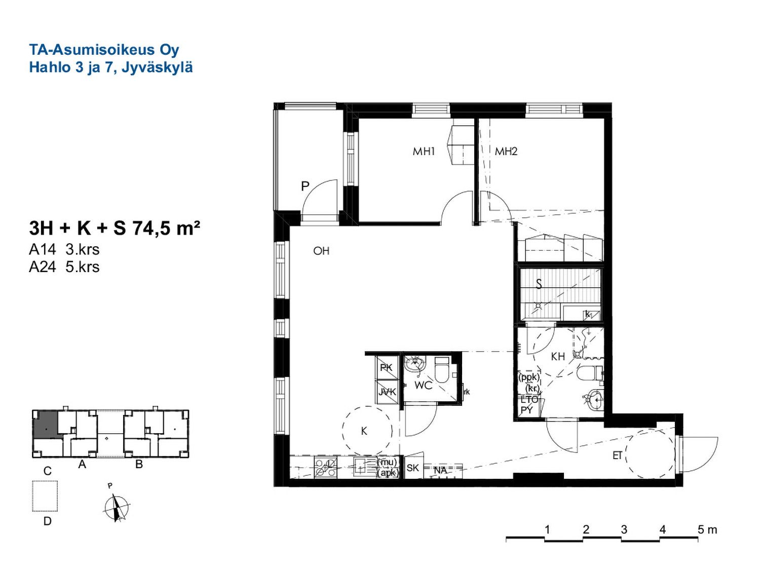
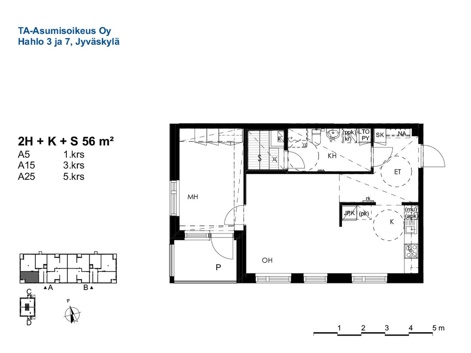
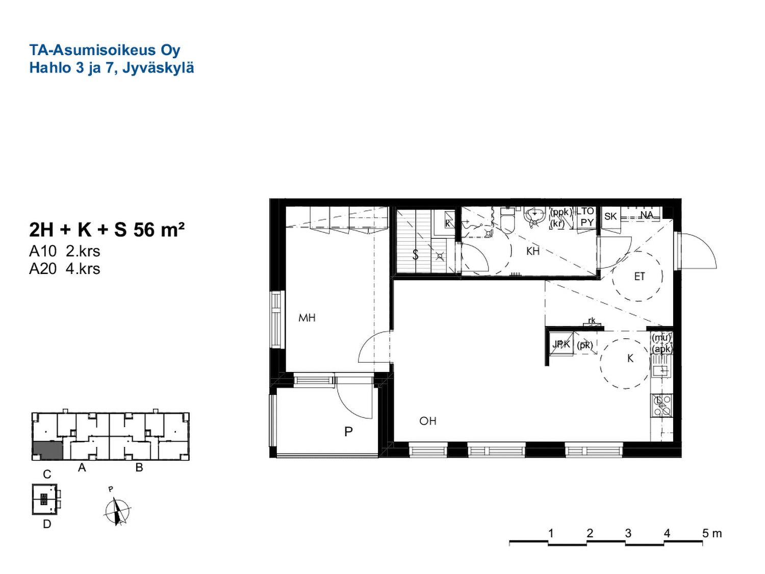
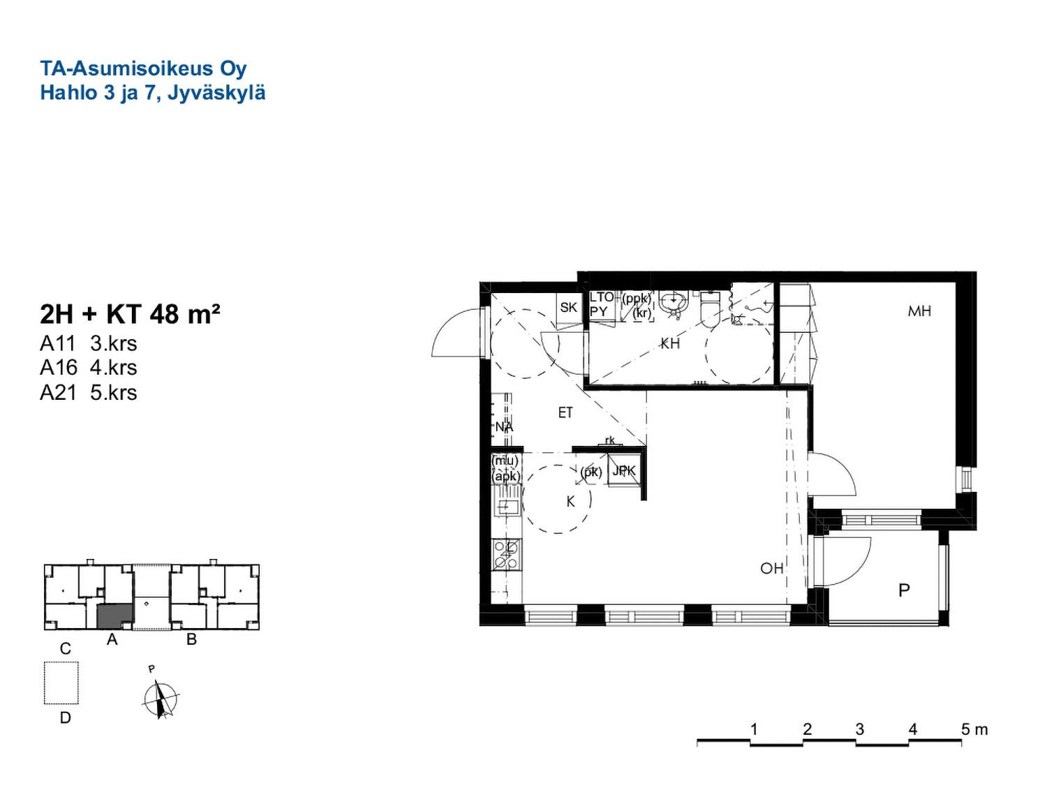
Huoneistotyypit:

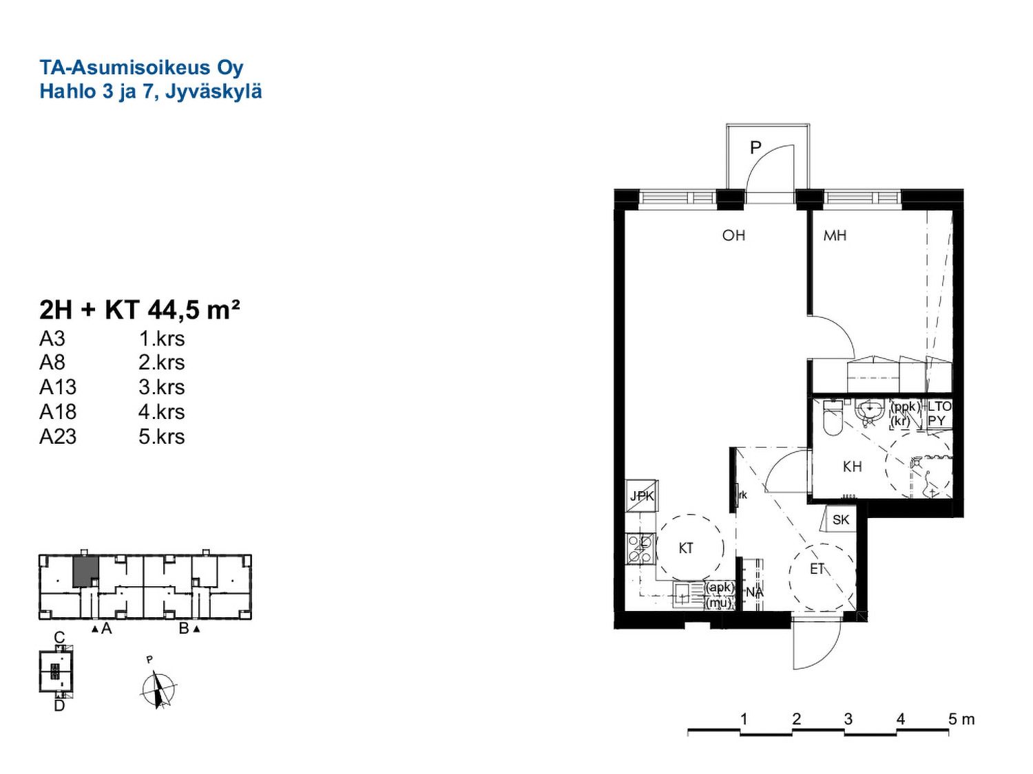
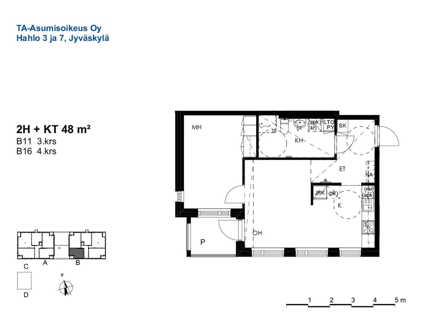
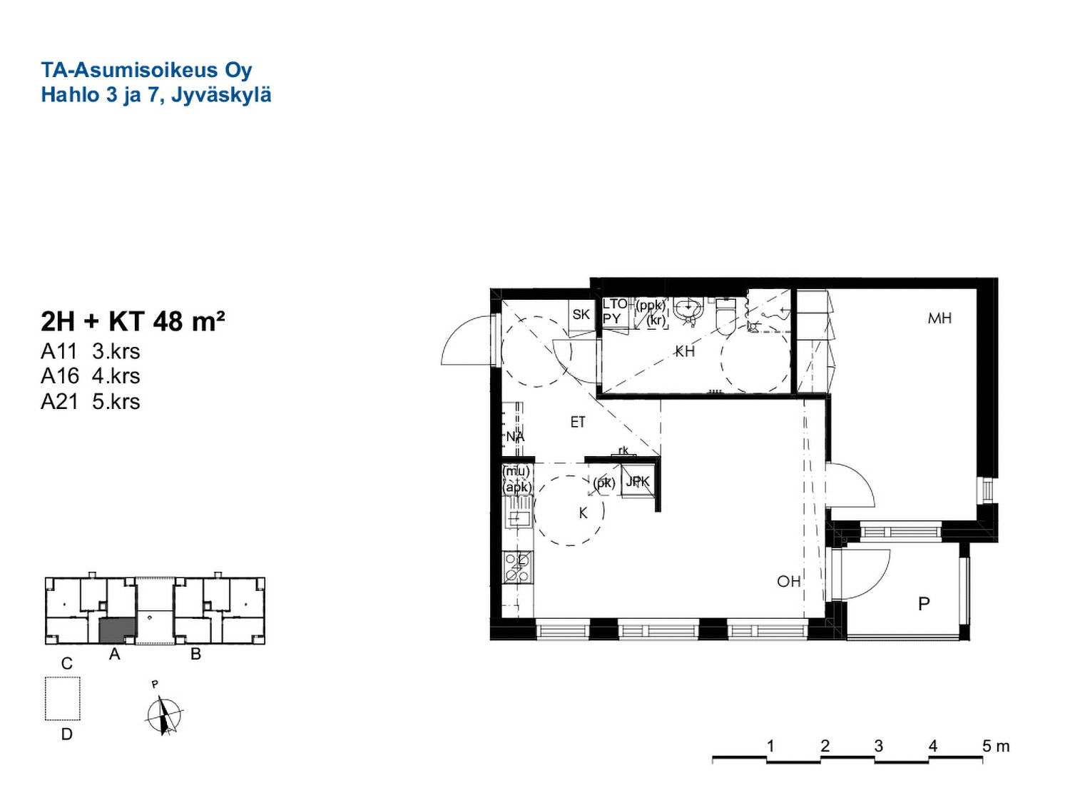
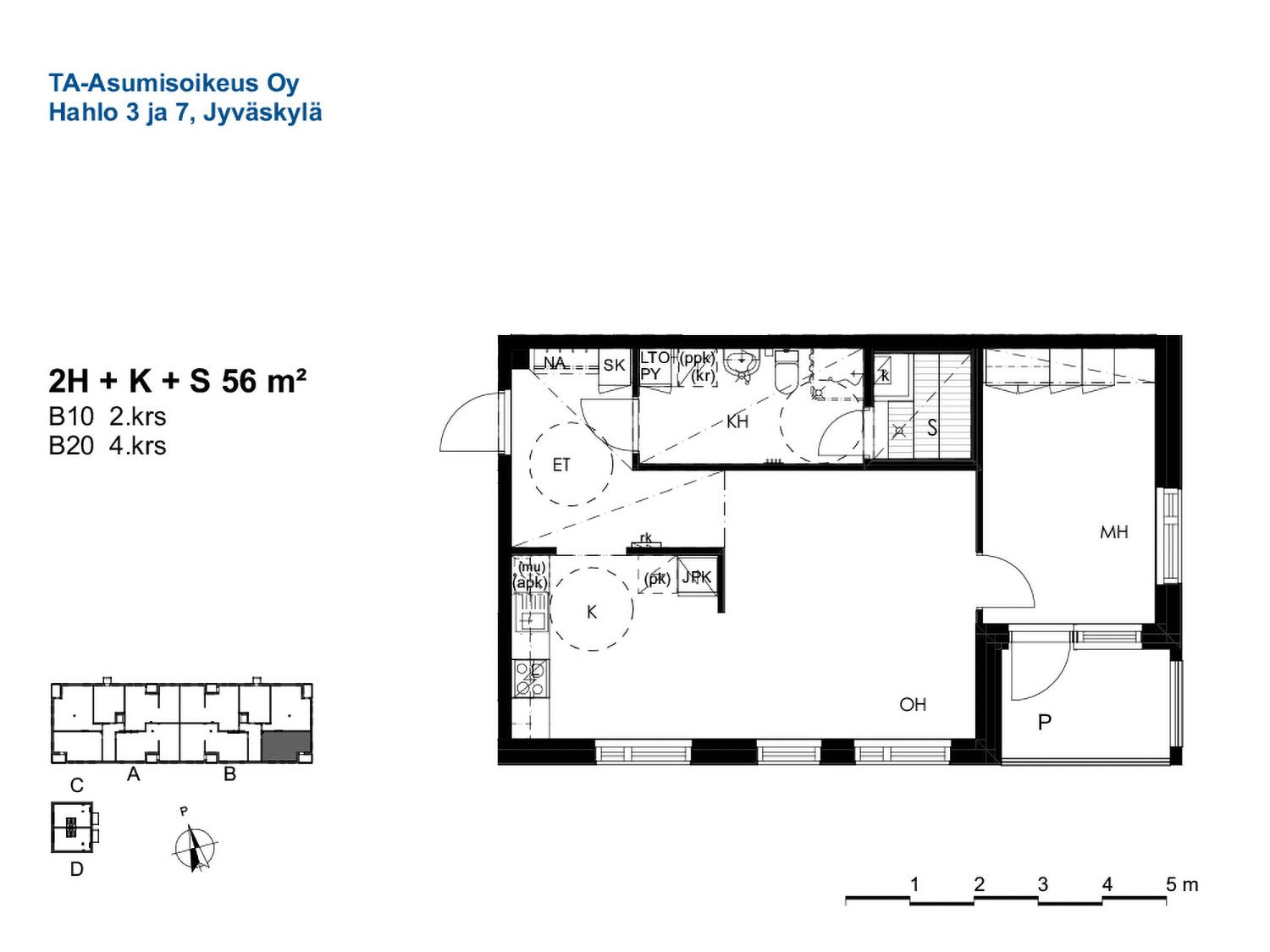
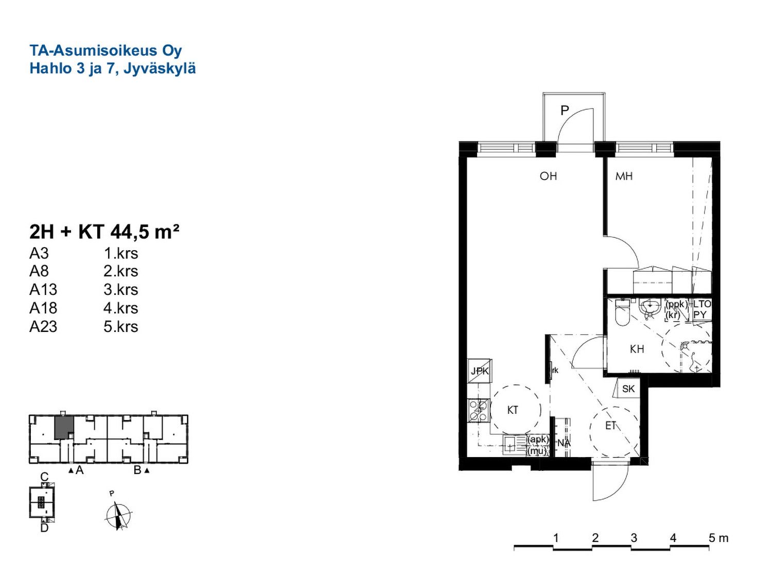
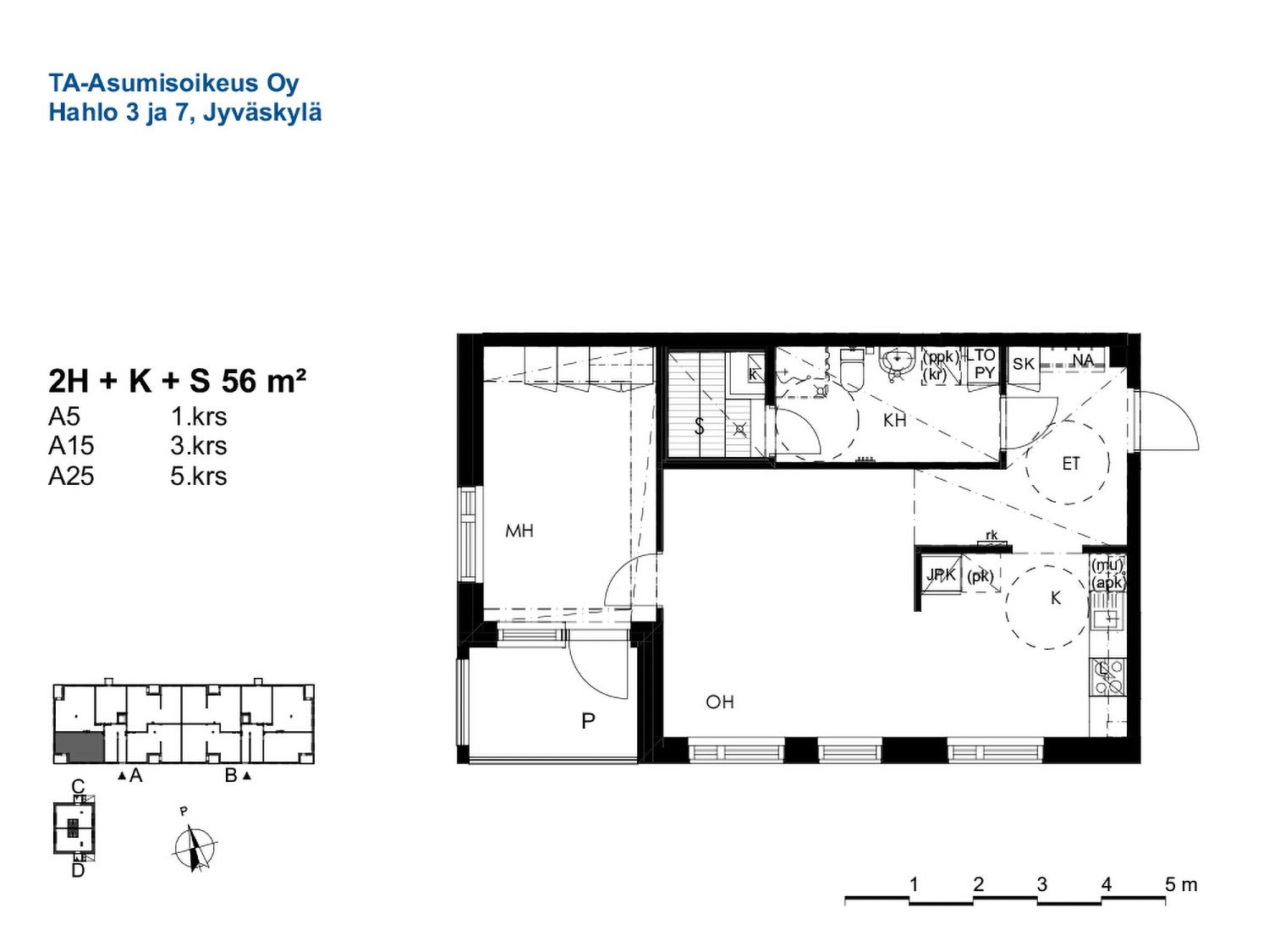
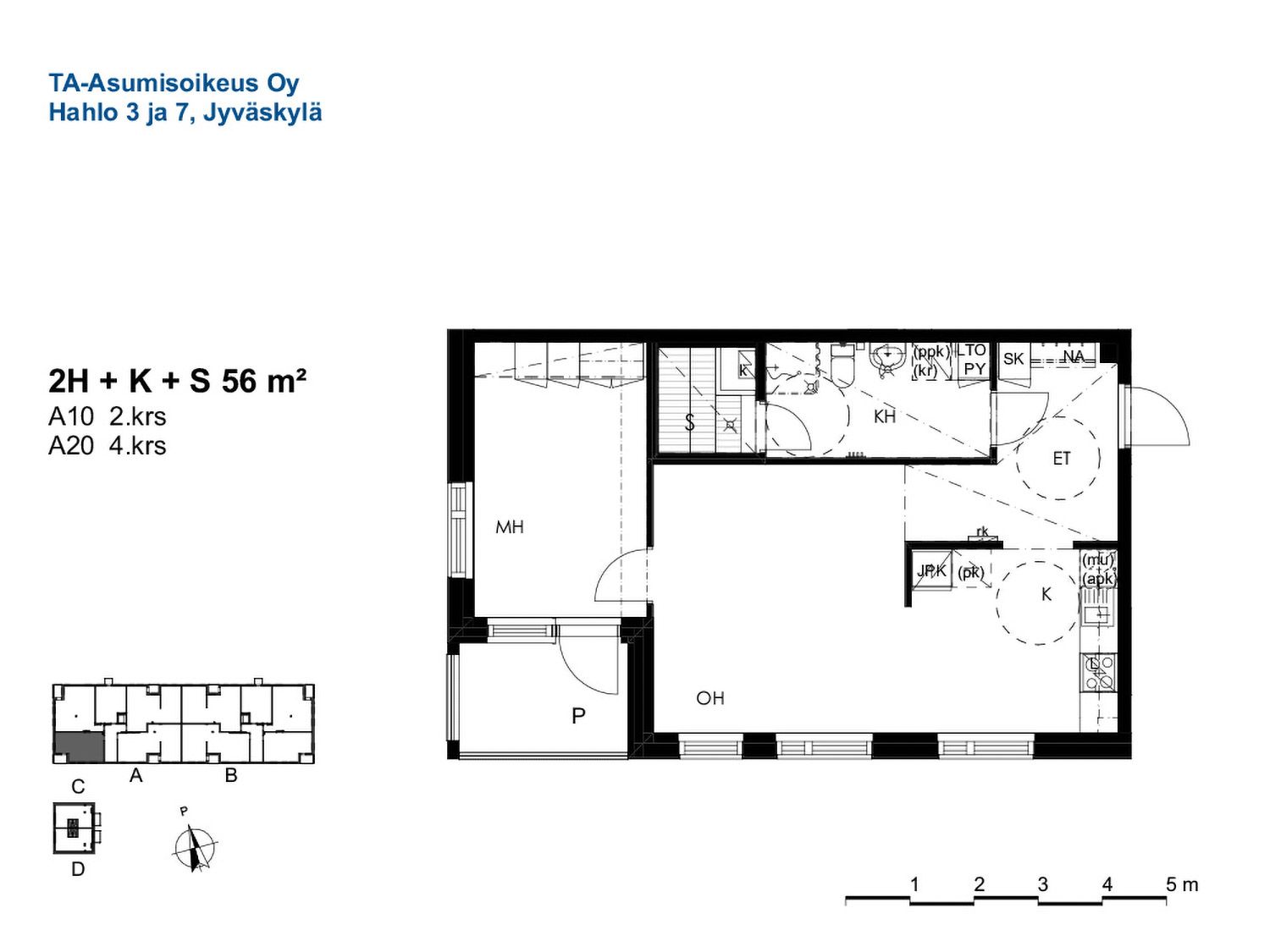
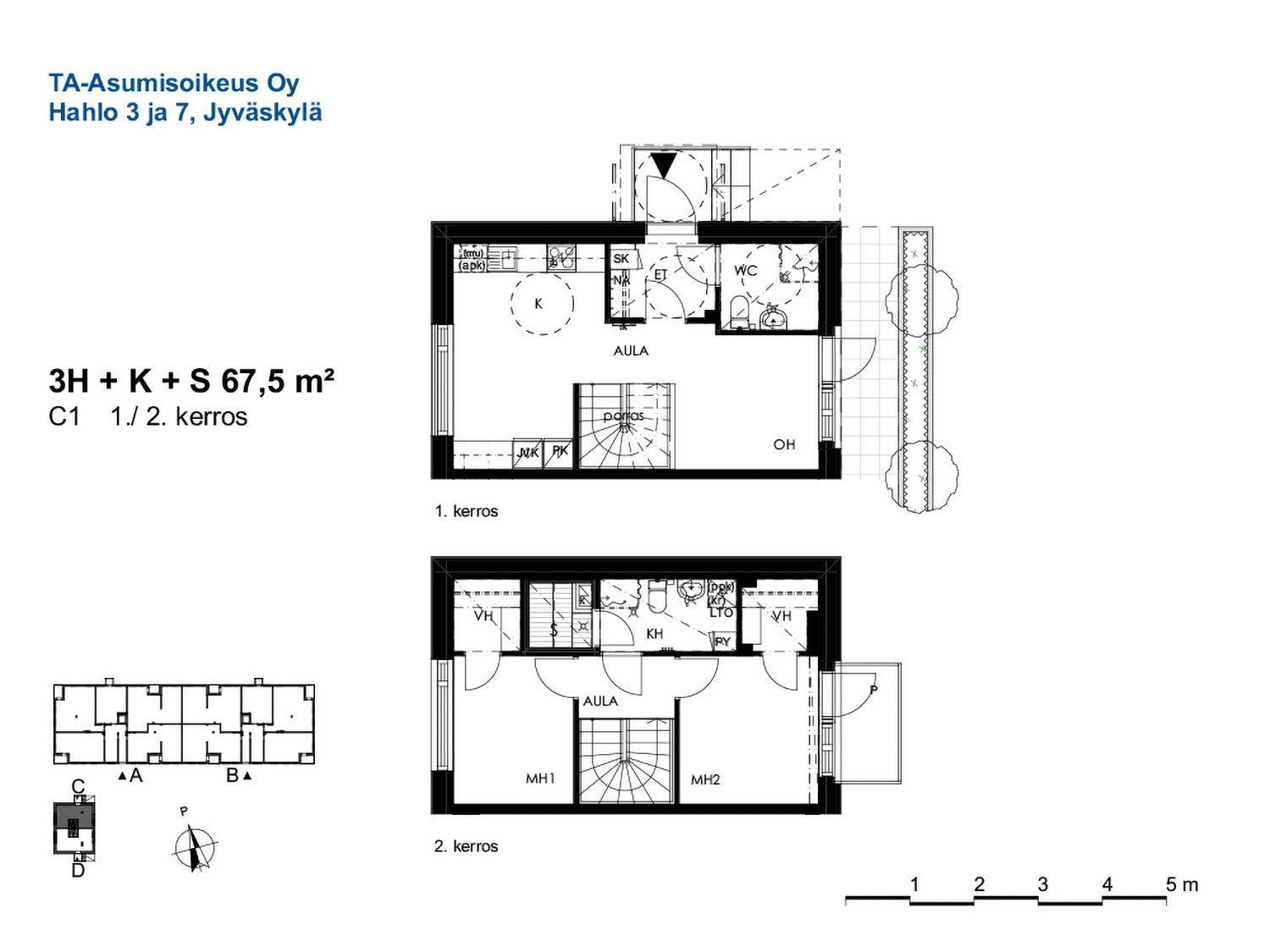
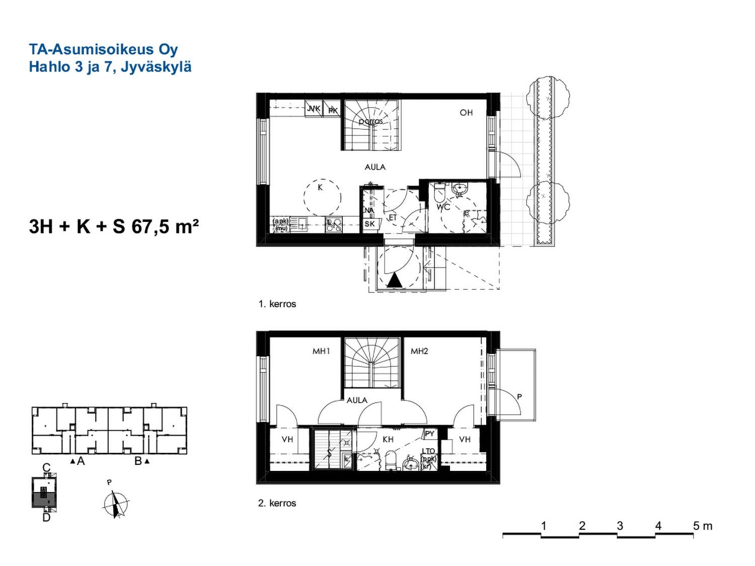
2h+kt, 44,5-48 m² (14 kpl)

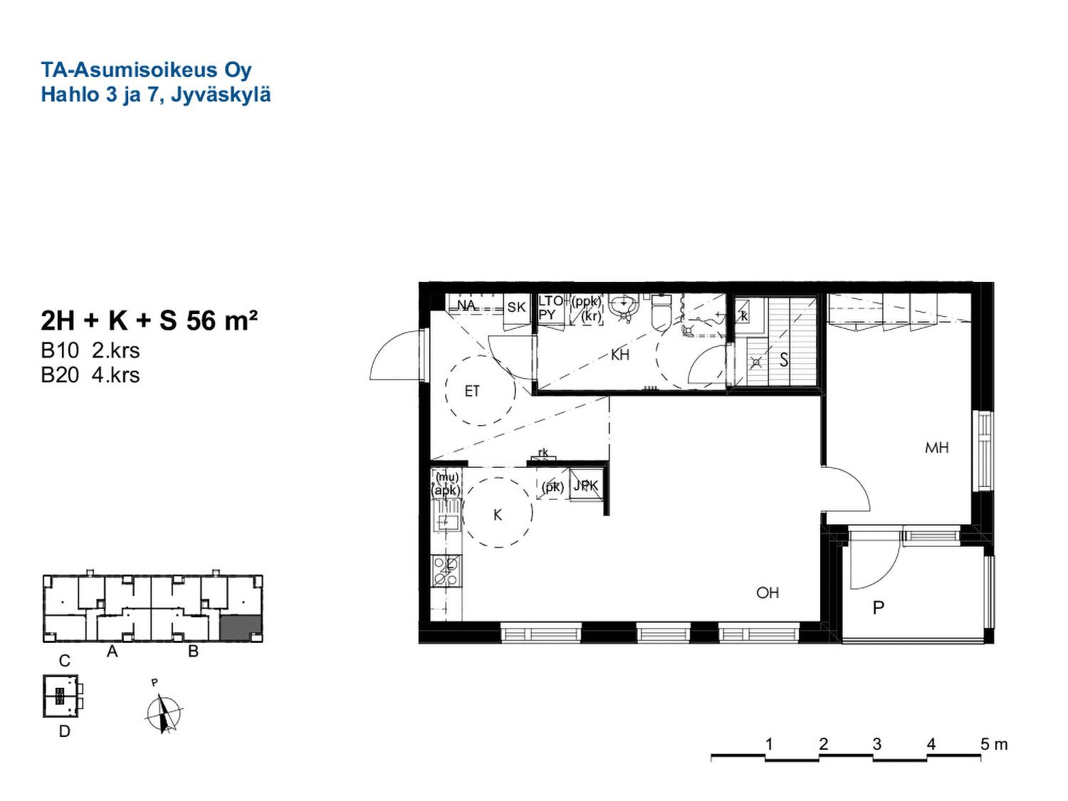
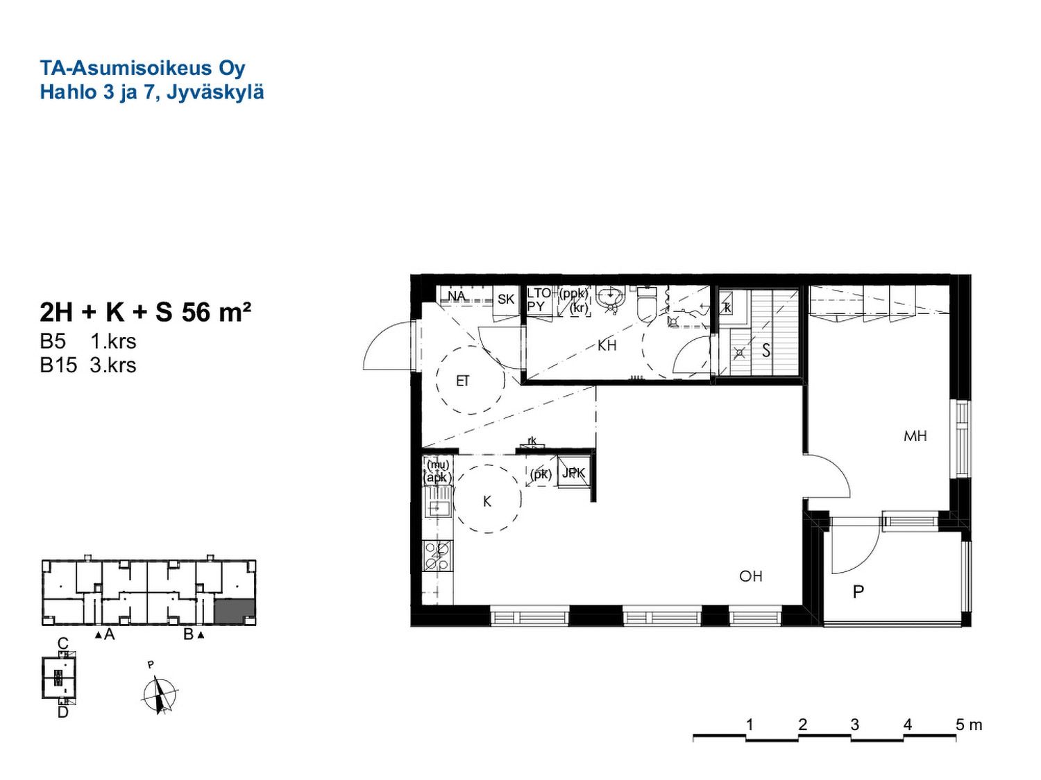
2h+k+s, 56 m² (9 kpl)

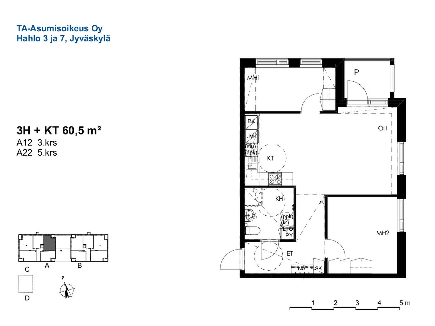
3h+kt, 60,5 m² (5 kpl)

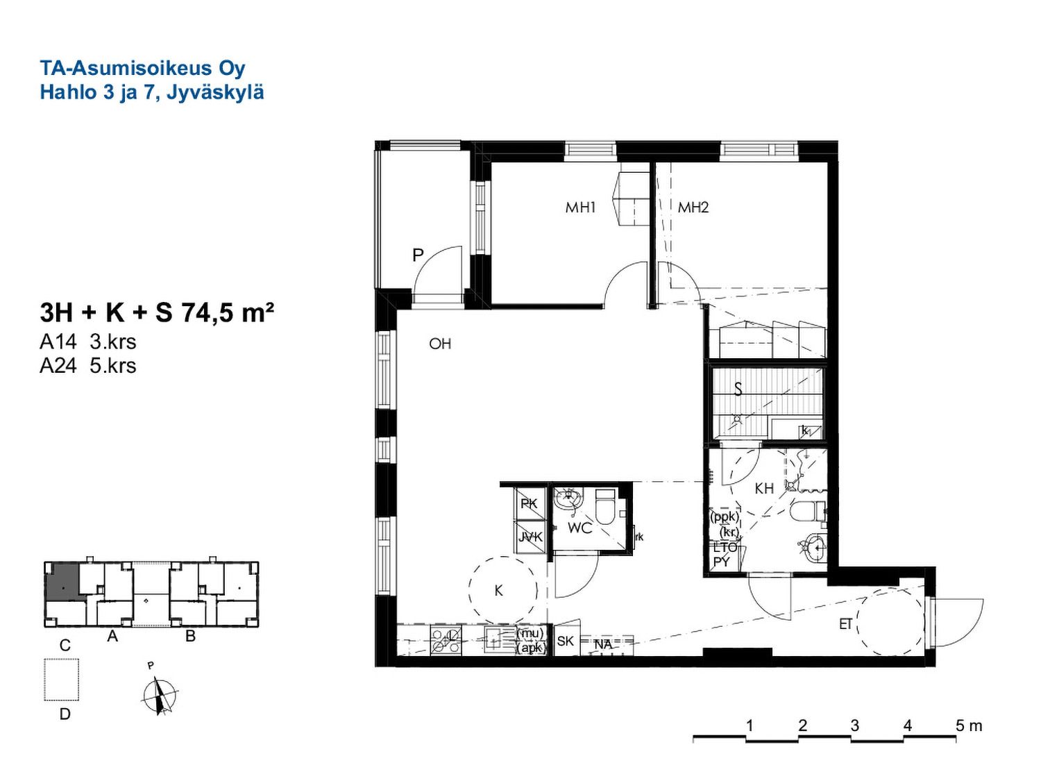
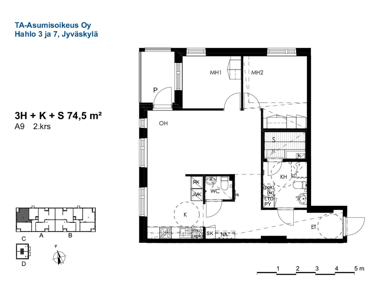
3h+k+s, 67,5-74,5 m² (11 kpl)

3h+kt+s, 74,5-81,5 m² (2 kpl)

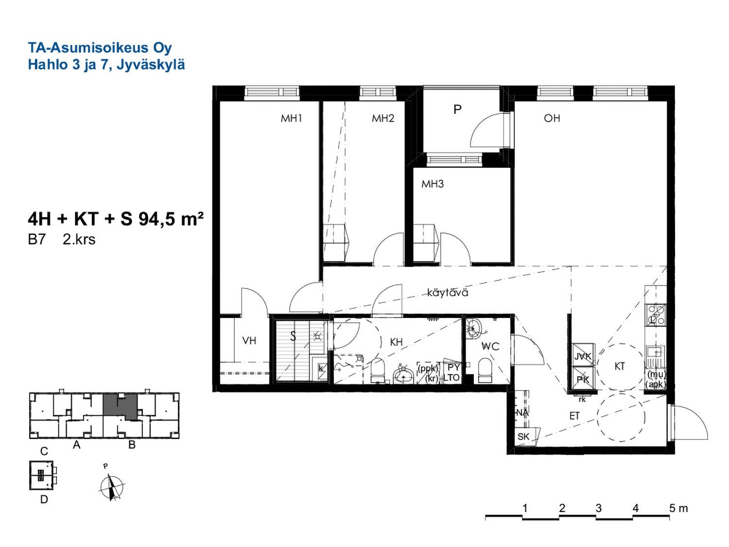
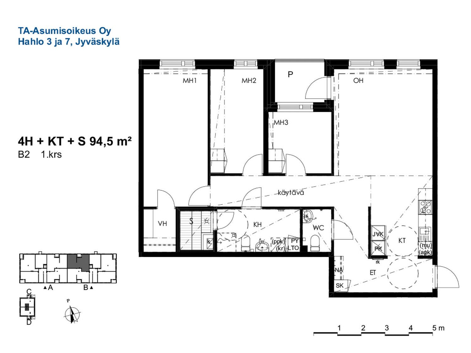
4h+kt+s, 85-94,5 m² (6 kpl)

Yleinen arvonlisäverokanta nousi 24 prosentista 25,5 prosenttiin 1.9.2024 alkaen. Valtion tukemassa asumisoikeustalossa Asumisen rahoitus- ja kehittämiskeskuksen hyväksymistä rakennus- tai hankintakustannuksista (hankinta-arvo) voidaan kerätä asumisoikeusmaksuina enintään 15 prosenttia. Asumisen rahoitus- ja kehittämiskeskus on hyväksynyt kohteen rakennuskustannukset 24 prosentin verokannalla. Mikäli asumisoikeushankkeen rakennuskustannukset nousevat arvonlisäverokannan korotuksesta johtuen, voidaan asumisoikeusmaksuja joutua tarkistamaan, kuitenkin alle 1,5 %:ia. Mahdolliset asumisoikeusmaksujen tarkistukset tehdään kohteen valmistumisen jälkeen. Asumisoikeusmaksujen tarkistamisesta tiedotetaan asumisoikeuden haltijoita kirjallisesti.

Huoneistovalikoima

Huoneistotyyppi kpl
2h+k+s 56 — 56 9
2h+kt 44,5 — 48 14
3h+k+s 67,5 — 74,5 11
3h+kt 60,5 — 60,5 5
3h+kt+s 74,5 — 81,5 2
4h+kt+s 85 — 94,5 6

Huom! Kohde-esitteen tiedot ovat esitteen laatimishetkeltä. Osa tiedoista on saattanut muuttua.

Kohteen perustiedot
  • Osoite: Hahlo 7, Hahlo 3
  • Postinumero: 40100
  • Kaupunki: Jyväskylä
  • Kaupunginosa: Tourula
  • Kaupunginosan tarkenne: Pajala
  • Asuntoja: 47
  • Arvioitu valmistuminen: 30.1.2026
  • Uudiskohde: Kyllä
  • Energialuokka: B2018
  • Talotyyppi: Paritalo, Kerrostalo
  • Lämmitysmuoto: Kaukolämpö
  • Ilmanvaihtomuoto: Asuntokohtainen tulo/poisto
  • Hissi: Rappu 3 A, Rappu 3 B
  • Talosauna: Kyllä
  • Autopaikat: 26 kpl
Yhteystiedot
Myynti
Maiju Kokkonen 04577343805 maiju.kokkonen@ta.fi

Huolto
Huollon yhteystiedot löydät kohteen ilmoitustaululta.

Asiakaspalvelukeskus
puh. 045 7734 3777, info@ta.fi

Huom. Puhelinnumeromme eivät vastaanota tekstiviestejä.

Kohteen vapaat ja vapautuvat asunnot

Huoneistonumero Huoneistotyyppi Kerros Tila
3h+kt+s 74,5 1/5 Vapautumassa
4h+kt+s 87,5 1/5 Vapautumassa
2h+kt 44,5 1/5 Vapautumassa
3h+k+s 74,5 1/5 Vapautumassa
2h+k+s 56,0 1/5 Vapautumassa
4h+kt+s 85,0 2/5 Vapautumassa
4h+kt+s 87,5 2/5 Vapautumassa
2h+kt 48,0 3/5 Vapautumassa
3h+kt 60,5 3/5 Vapautumassa
3h+kt 60,5 5/5 Vapautumassa
3h+k+s 74,5 5/5 Vapautumassa
3h+kt+s 81,5 1/5 Vapautumassa
4h+kt+s 94,5 1/5 Vapautumassa
3h+k+s 74,5 1/5 Vapautumassa
2h+k+s 56,0 1/5 Vapautumassa
4h+kt+s 92,0 2/5 Vapautumassa
4h+kt+s 94,5 2/5 Vapautumassa
2h+kt 44,5 2/5 Vapautumassa
3h+k+s 74,5 2/5 Vapautumassa
2h+k+s 56,0 2/5 Vapautumassa
2h+kt 48,0 3/5 Vapautumassa
3h+kt 60,5 3/5 Vapautumassa
2h+kt 44,5 3/5 Vapautumassa
3h+k+s 74,5 3/5 Vapautumassa
2h+k+s 56,0 3/5 Vapautumassa
2h+kt 44,5 4/5 Vapautumassa
2h+k+s 56,0 4/5 Vapautumassa

Huoneistot ja pohjakuvat

Kohteen kaikki huoneistot, sekä vapaat että varatut. Voit hakea myös huoneistoa, joka on varattuna. Varattuja huoneistoja tarjotaan hakijoille sitä mukaa kun niitä vapautuu.

Hahlo 3

Huoneistonumero Huoneistotyyppi Kerros Talotyyppi Pohja
Talo A
A 1 3h+kt+s 74,5 m² 1/5 Kerrostalo
A 2 4h+kt+s 87,5 m² 1/5 Kerrostalo
A 3 2h+kt 44,5 m² 1/5 Kerrostalo
A 4 3h+k+s 74,5 m² 1/5 Kerrostalo
A 5 2h+k+s 56,0 m² 1/5 Kerrostalo
A 6 4h+kt+s 85,0 m² 2/5 Kerrostalo
A 7 4h+kt+s 87,5 m² 2/5 Kerrostalo
A 8 2h+kt 44,5 m² 2/5 Kerrostalo
A 9 3h+k+s 74,5 m² 2/5 Kerrostalo
A 10 2h+k+s 56,0 m² 2/5 Kerrostalo
A 11 2h+kt 48,0 m² 3/5 Kerrostalo
A 12 3h+kt 60,5 m² 3/5 Kerrostalo
A 13 2h+kt 44,5 m² 3/5 Kerrostalo
A 14 3h+k+s 74,5 m² 3/5 Kerrostalo
A 15 2h+k+s 56,0 m² 3/5 Kerrostalo
A 16 2h+kt 48,0 m² 4/5 Kerrostalo
A 17 3h+kt 60,5 m² 4/5 Kerrostalo
A 18 2h+kt 44,5 m² 4/5 Kerrostalo
A 19 3h+k+s 74,5 m² 4/5 Kerrostalo
A 20 2h+k+s 56,0 m² 4/5 Kerrostalo
A 21 2h+kt 48,0 m² 5/5 Kerrostalo
A 22 3h+kt 60,5 m² 5/5 Kerrostalo
A 23 2h+kt 44,5 m² 5/5 Kerrostalo
A 24 3h+k+s 74,5 m² 5/5 Kerrostalo
A 25 2h+k+s 56,0 m² 5/5 Kerrostalo
Talo B
B 1 3h+kt+s 81,5 m² 1/5 Kerrostalo
B 2 4h+kt+s 94,5 m² 1/5 Kerrostalo
B 3 2h+kt 44,5 m² 1/5 Kerrostalo
B 4 3h+k+s 74,5 m² 1/5 Kerrostalo
B 5 2h+k+s 56,0 m² 1/5 Kerrostalo
B 6 4h+kt+s 92,0 m² 2/5 Kerrostalo
B 7 4h+kt+s 94,5 m² 2/5 Kerrostalo
B 8 2h+kt 44,5 m² 2/5 Kerrostalo
B 9 3h+k+s 74,5 m² 2/5 Kerrostalo
B 10 2h+k+s 56,0 m² 2/5 Kerrostalo
B 11 2h+kt 48,0 m² 3/5 Kerrostalo
B 12 3h+kt 60,5 m² 3/5 Kerrostalo
B 13 2h+kt 44,5 m² 3/5 Kerrostalo
B 14 3h+k+s 74,5 m² 3/5 Kerrostalo
B 15 2h+k+s 56,0 m² 3/5 Kerrostalo
B 16 2h+kt 48,0 m² 4/5 Kerrostalo
B 17 3h+kt 60,5 m² 4/5 Kerrostalo
B 18 2h+kt 44,5 m² 4/5 Kerrostalo
B 19 3h+k+s 74,5 m² 4/5 Kerrostalo
B 20 2h+k+s 56,0 m² 4/5 Kerrostalo

Hahlo 7

Huoneistonumero Huoneistotyyppi Kerros Talotyyppi Pohja
Talo C
C 1 3h+k+s 67,5 m² 1-2/2 Paritalo
Talo D
D 1 3h+k+s 67,5 m² 1-2/2 Paritalo

Energiatodistukset

Hae kohteen energiatodistukset

Tupakointi on kiellettyä kaikissa asunnoissamme ja talojen yhteisissä tiloissa kuten rappukäytävissä sekä sauna- ja varastotiloissa.

Vuodesta 2019 lähtien tehdyissä uusissa asumisoikeussopimuksissa ja vuodesta 2020 tehdyissä vuokrasopimuksissa asukas on sitoutunut olemaan tupakoimatta kiinteistön alueella mahdollista erikseen osoitettua tupakointipaikkaa lukuun ottamatta. Uudiskohteissa savuttomuusehto on otettu käyttöön jo aiemmin.

Osa kiinteistöistämme on kokonaan savuttomia. Savuttomuus tarkoittaa sitä, että tupakointi on kiellettyä kiinteistössä, sen asunnoissa, parvekkeilla, piha-alueilla ja yhteisissä tiloissa.

Jätä meille asuntohakemus

Täyttämällä hakemuksen voit hakea meiltä vuokra-asuntoa, jättää asumisoikeushakemuksen sekä vapaisiin ja vapautuviin asuntoihin että varattuihin asumisoikeuskohteisiin. Saat asuntotarjouksen heti kun voimme tarjota toiveitasi vastaavaa asuntoa. Mikäli sinulla on kysyttävää, otathan yhteyttä asunnon tai kohteen myyntineuvottelijaan.

Tutustu asuntoon ennen päätöstä

Voit tutustua asuntoon ensin ja päättää vasta sitten, haluatko tehdä kanssamme sopimuksen. Mikäli olet hyväksynyt asumisoikeusasunnon asuntotarjouksen, pyrimme järjestämään sinulle mahdollisuuden tutustua asuntoon jo tarjouskierroksen aikana. Järjestämme jonkin verran myös yleisiä näyttöjä vapaissa asunnoissamme. Uudiskohteissa ei valitettavasti voi järjestää vastaavanlaisesti näyttöjä kuin jo valmistuneissa kohteissa.