Asumisoikeusasunto, Hahlo 3, Pajala, Tourula, 40100, Jyväskylä

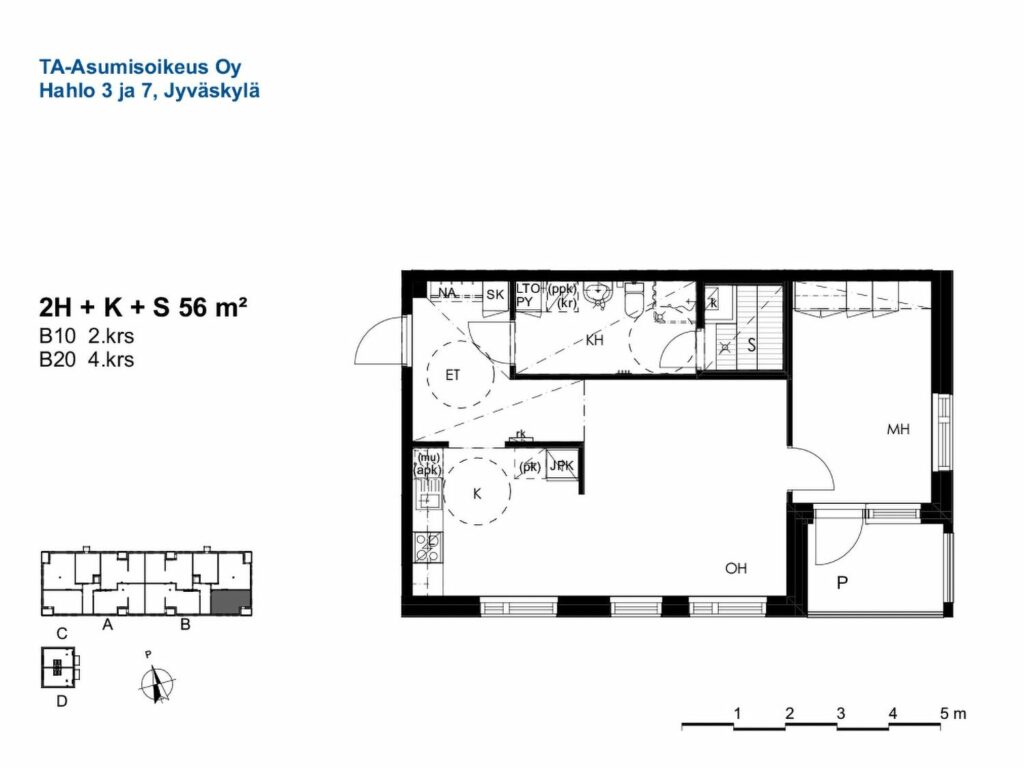
Kaksio | 2h+k+s | 56 m²

773,75 €/kk

Käyttövastike

36 501,00 €

Alustava asumisoikeusmaksu

Asumisoikeusasunto, joka tarjoaa toimivan pohjaratkaisun ja mukavuutta arkeen. Avara olohuone ja keittiö luovat yhdessä kodin sydämen – viihtyisän tilan, jossa on mukava kokata, seurustella ja rentoutua. Tilava makuuhuone tarjoaa rauhallisen levähdyspaikan ja sieltä on suora käynti omalle parvekkeelle, jossa voit nauttia raikkaasta ulkoilmasta. Asumismukavuutta lisää oma sauna, jossa rentoudut päivän päätteeksi. Tämä koti on suunniteltu sujuvaa ja viihtyisää arkea varten.

Tässä kohteessa on hintatakuu – tämän kohteen vastikehinta ei tule nousemaan vuosien 2026 ja 2027 aikana!

Tourulan Pajalaan, entisen Kivääritehtaan alueelle, tammikuun 2026 lopulla valmistuneita laadukkaita asumisoikeusasuntoja. Hahlo 3 ja 7 koostuu kahdesta asuinrakennuksesta, joissa on kaikkiaan 47 asumisoikeusasuntoa. Asuinrakennuksista toinen on kaksikerroksinen paritalo ja toinen 4-5 kerroksinen kerrostalo, jossa on kaksikerroksinen väliosa.

Talossa on myös monipuoliset yhteistilat: huoneistokohtaiset irtaimistovarastot, ulkoiluväline- ja lastenvaunuvarastot, kerhotila, sauna, pesula ja kuivaushuone. Rakennusten yhteydessä on pysäköintihalli. Kohteen asukkaille on yhteensä 26 kpl autopaikkoja, joista 24 kpl on hallipaikkoja ja loput 2 kpl pihapaikkoja.

Asunnot sijaitsevat ihanteellisella sijainnilla, lähellä keskustan ja Seppälän alueen monipuolisia palveluita sekä toimivia liikenneyhteyksiä. Alueella pärjää myös hyvin ilman omaa autoa hyvien kävely- ja pyöräteiden sekä joukkoliikenneyhteyksien vuoksi. Kivääritehtaan alue kuuluu valtakunnallisesti arvokkaaseen rakennettuun perintöön, ja alueen asukkaat pääsevätkin nauttimaan alueen kauniista kulttuurihistoriallisesta ympäristöstä, suojelluista rakennuksista sekä laadukkaista ja vehreistä, puistomaisista piha-alueista.

Vedenkulutus mitataan huoneistotokohtaisesti. Vedestä maksetaan henkilölukuun perustuva vesimaksuennakko joka tasataan kulutuksen mukaisesti.

Yleinen arvonlisäverokanta nousi 24 prosentista 25,5 prosenttiin 1.9.2024 alkaen. Valtion tukemassa asumisoikeustalossa Asumisen rahoitus- ja kehittämiskeskuksen hyväksymistä rakennus- tai hankintakustannuksista (hankinta-arvo) voidaan kerätä asumisoikeusmaksuina enintään 15 prosenttia. Asumisen rahoitus- ja kehittämiskeskus on hyväksynyt kohteen rakennuskustannukset 24 prosentin verokannalla. Mikäli asumisoikeushankkeen rakennuskustannukset nousevat arvonlisäverokannan korotuksesta johtuen, voidaan asumisoikeusmaksuja joutua tarkistamaan, kuitenkin alle 1,5 %:ia. Mahdolliset asumisoikeusmaksujen tarkistukset tehdään kohteen valmistumisen jälkeen. Asumisoikeusmaksujen tarkistamisesta tiedotetaan asumisoikeuden haltijoita kirjallisesti.

Yhteydenotot
Myynti Maiju Kokkonen 04577343805 (vain puhelut) maiju.kokkonen@ta.fi
Perustiedot
  • Osoite: Hahlo 3 B 10, 40100 Jyväskylä
  • Asuinalue: Tourula
  • Kaupunginosan tarkenne: Pajala
  • Postinumero: 40100
  • Postitoimipaikka: Jyväskylä
  • Valmistumisvuosi: 2026
  • Asumismuoto: Asumisoikeus
  • Valintarajat: Varallisuusrajat alle 55-vuotiailla
  • Huoneistotyyppi: 2h+k+s
  • Huoneita: 2
  • Pinta-ala: 56 m²
  • Huoneistoala yhteensä: 56 m²
  • Kerros/kerroksia: 2/5
  • Hissi: Kyllä
  • Oma sauna: Kyllä
  • Talosauna: Kyllä
  • Parveke: Kyllä
  • Tupakointi kielletty: Kyllä
  • Lemmikit sallittu: Kyllä
Sopimus ja maksut
  • Käyttövastike: 773,75 €/kk
  • Alustava asumisoikeusmaksu: 36 501,00 €
  • Vakuusmaksu: 1 547,50 €
  • Vesimaksu: Ennakko 21,00 €/hlö/kk, tasaus kulutuksen mukaan
Pysäköintipaikat
  • Inva, Piha, Tolppapaikka: 25,00 €/kk
  • Piha, Tolppapaikka: 25,00 €/kk
  • Halli, Tolppapaikka: 50,00 €/kk
  • Halli, Tolppapaikka, Sähköauton lataus: Latausratkaisun mukaan
Kohteen tiedot
  • Talotyyppi: Kerrostalo
  • Asuntojen määrä: 47
  • Hissi: Rappu 3 A, Rappu 3 B
  • Valmistumisvuosi: 2026
  • Energialuokka: B2018
  • Lämmitys: Kaukolämpö
  • Ilmanvaihto: Asuntokohtainen tulo/poisto
  • Kiinteistöhuolto: Luotea, Jyväskylä
  • Autopaikat: 26 kpl. Kohteessa sähköautojen latausmahdollisuus. Kysy lisää!

Muut vapaat ja vapautuvat asunnot

Huoneistonumero Tarjoukset Huoneistotyyppi Kerros Tila
3h+kt+s 74,5 1/5 Vapaa
4h+kt+s 87,5 1/5 Vapaa
2h+kt 44,5 1/5 Vapaa
3h+k+s 74,5 1/5 Vapaa
2h+k+s 56,0 1/5 Vapaa
4h+kt+s 85,0 2/5 Vapaa
4h+kt+s 87,5 2/5 Vapaa
2h+kt 44,5 2/5 Vapaa
3h+k+s 74,5 2/5 Vapaa
2h+kt 48,0 3/5 Vapaa
3h+kt 60,5 3/5 Vapaa
2h+kt 44,5 3/5 Vapaa
3h+k+s 74,5 3/5 Vapaa
3h+kt 60,5 5/5 Vapaa
3h+k+s 74,5 5/5 Vapaa
4h+kt+s 94,5 1/5 Vapaa
3h+k+s 74,5 1/5 Vapaa
2h+k+s 56,0 1/5 Vapaa
4h+kt+s 92,0 2/5 Vapaa
4h+kt+s 94,5 2/5 Vapaa
2h+kt 44,5 2/5 Vapaa
3h+k+s 74,5 2/5 Vapaa
2h+k+s 56,0 2/5 Vapaa
2h+kt 48,0 3/5 Vapaa
3h+kt 60,5 3/5 Vapaa
2h+kt 44,5 3/5 Vapaa
3h+k+s 74,5 3/5 Vapaa
2h+k+s 56,0 3/5 Vapaa
2h+kt 44,5 4/5 Vapaa
2h+k+s 56,0 4/5 Vapaa

Tupakointi on kiellettyä kaikissa asunnoissamme ja talojen yhteisissä tiloissa kuten rappukäytävissä sekä sauna- ja varastotiloissa.

Vuodesta 2019 lähtien tehdyissä uusissa asumisoikeussopimuksissa ja vuodesta 2020 tehdyissä vuokrasopimuksissa asukas on sitoutunut olemaan tupakoimatta kiinteistön alueella mahdollista erikseen osoitettua tupakointipaikkaa lukuun ottamatta. Uudiskohteissa savuttomuusehto on otettu käyttöön jo aiemmin.

Osa kiinteistöistämme on kokonaan savuttomia. Savuttomuus tarkoittaa sitä, että tupakointi on kiellettyä kiinteistössä, sen asunnoissa, parvekkeilla, piha-alueilla ja yhteisissä tiloissa.

Jätä meille asuntohakemus

Täyttämällä hakemuksen voit hakea meiltä vuokra-asuntoa, jättää asumisoikeushakemuksen sekä vapaisiin ja vapautuviin asuntoihin että varattuihin asumisoikeuskohteisiin. Saat asuntotarjouksen heti kun voimme tarjota toiveitasi vastaavaa asuntoa. Mikäli sinulla on kysyttävää, otathan yhteyttä asunnon tai kohteen myyntineuvottelijaan.

Tutustu asuntoon ennen päätöstä

Voit tutustua asuntoon ensin ja päättää vasta sitten, haluatko tehdä kanssamme sopimuksen. Mikäli olet hyväksynyt asumisoikeusasunnon asuntotarjouksen, pyrimme järjestämään sinulle mahdollisuuden tutustua asuntoon jo tarjouskierroksen aikana. Järjestämme jonkin verran myös yleisiä näyttöjä vapaissa asunnoissamme. Uudiskohteissa ei valitettavasti voi järjestää vastaavanlaisesti näyttöjä kuin jo valmistuneissa kohteissa.